Residential9643 W Kollmeyer St
At a Glance
- Builder:
- Year built: 2025
- Bedrooms: 5
- Bathrooms: 3
- Half Baths: 0
- Garage Size: Attached, Opener, 3
- Area, sq ft: 3,158 sq ft
- Date added: Added 8 months ago
- Levels: One
Description
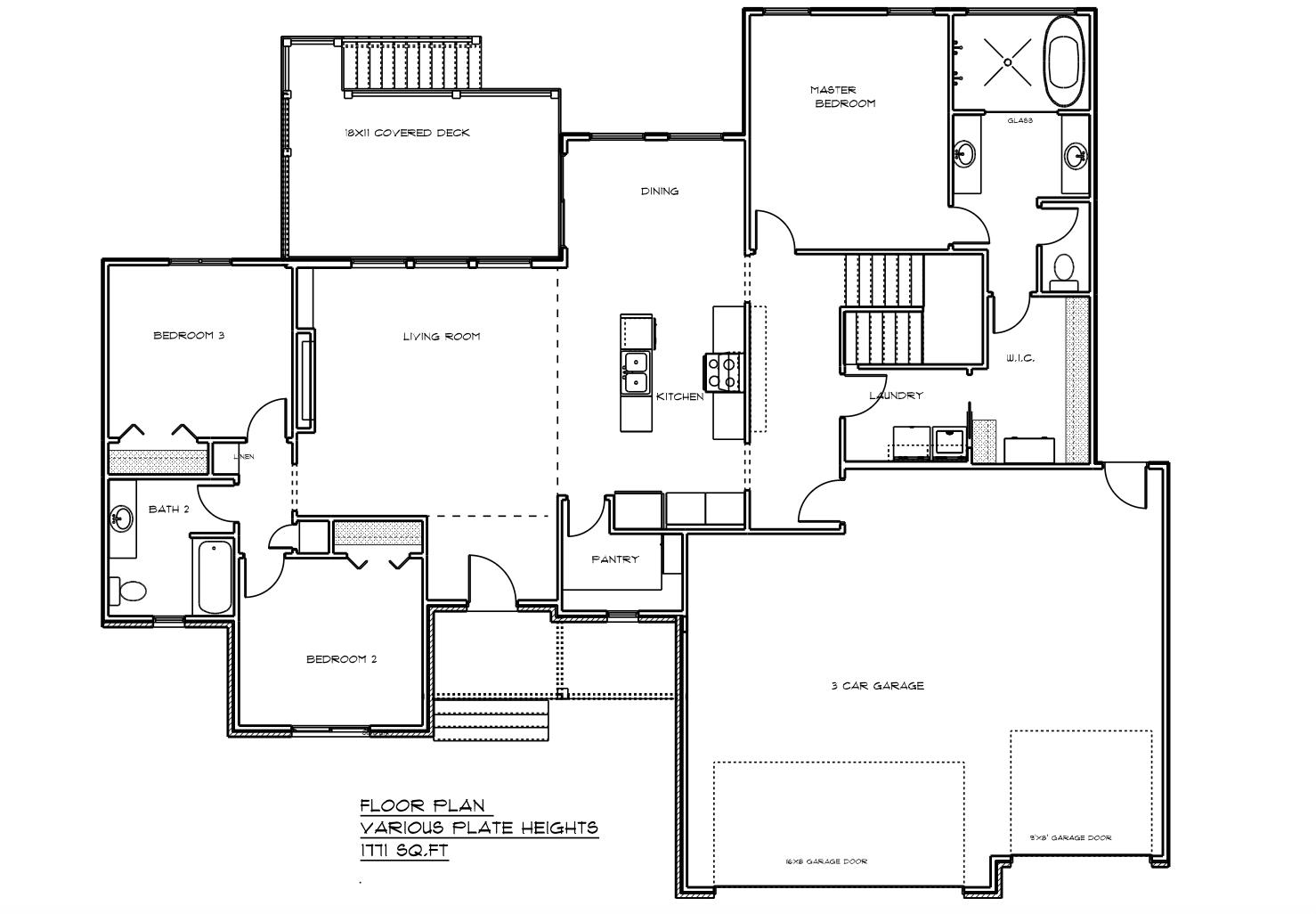
- Description: Style, function, and thoughtful design come together in the beautiful Brooks plan by M&M Construction. The living room impresses with its over 11-foot ceiling accented by maple wood beams and an electric fireplace as the focal point. The kitchen offers quartz countertops, a bright walk-in pantry with a window, built-in microwave, and plenty of shelving. A convenient drop zone with bench and shelves is tucked behind the kitchen, right by the stairs to the finished basement. The master suite connects to a separate laundry room with a folding table and built-in dresser in the closet. Enjoy a spa-like master bath featuring a separate tub and shower and tile flooring. LVP runs throughout the main living areas for a clean, easy to care for cohesive look. Downstairs, the finished basement includes a walk-up wet bar—perfect for entertaining. Outside, relax on the huge 18’x10’ covered composite deck overlooking a large lot that backs to mature trees. 8-foot garage doors complete this smart, stylish home designed for modern living. Information deemed reliable but not guaranteed and may change without notice. Room sizes may be estimated. Taxes are shown on vacant lot.Specials may not be entirely spread yet and are shown as estimates. There is a $250 mailbox key collected at closing. Show all description
Community
- School District: Maize School District (USD 266)
- Elementary School: Maize USD266
- Middle School: Maize
- High School: Maize
- Community: Woodard (Henwick)
Rooms in Detail
- Rooms: Room type Dimensions Level Master Bedroom 13'8"x13'8" Main Living Room 19'x18' Main Kitchen 19'x12' Main Dining Room 12'x8' Main Bedroom 11'x11' Main Bedroom 11'x11' Main Family Room 36'x19' Basement Bedroom 13'x13' Basement Bedroom 12'4"x13' Basement
- Living Room: 3158
- Master Bedroom: Master Bdrm on Main Level, Split Bedroom Plan, Master Bedroom Bath, Sep. Tub/Shower/Mstr Bdrm, Quartz Counters
- Appliances: Dishwasher, Disposal, Microwave, Range, Humidifier
- Laundry: Main Floor, Separate Room
Listing Record
- MLS ID: SCK660719
- Status: Pending
Financial
- Tax Year: 2025
Additional Details
- Basement: Finished
- Roof: Composition
- Heating: Forced Air, Natural Gas
- Cooling: Central Air, Electric
- Exterior Amenities: Irrigation Pump, Irrigation Well, Sprinkler System, Frame w/Less than 50% Mas
- Interior Amenities: Ceiling Fan(s), Walk-In Closet(s)
- Approximate Age: New
Agent Contact
- List Office Name: J Russell Real Estate
- Listing Agent: Carol, Phipps
Location
- CountyOrParish: Sedgwick
- Directions: From Maize Rd and 45th St North go east on 45th to Henwick entrance and turn right. Take 2nd left on Wilkinson and go as far as you can to Grey Meadows and turn right. Go to house just after curve.