Residential5518 N St. Paul Ct.
At a Glance
- Builder: Relph Construction
- Year built: 2025
- Bedrooms: 5
- Bathrooms: 3
- Half Baths: 0
- Garage Size: Attached, Opener, 3
- Area, sq ft: 1,824 sq ft
- Floors: Smoke Detector(s)
- Date added: Added 1 month ago
- Levels: One
Description
- Description: The Edge Plan by Relph Construction offers a perfect blend of smart design and value. Masterfully crafted to maximize square footage and affordability, this home is tucked away on a unique corner lot at the end of the street—no neighbors on one side or directly behind for added privacy. The main living area features vaulted ceilings, a cozy fireplace, and stylish LVP flooring. The U-shaped kitchen boasts quartz countertops, abundant cabinetry, and connects seamlessly to the separate dining area with walk-out access to the large covered deck. The master suite includes a spacious bedroom, two closets, and a private bath. Two additional bedrooms and a full hall bath complete the main floor. Downstairs, the fully finished lower level offers a huge family room, two oversized bedrooms, a full bath, and generous storage space. Available now in Watermarke! Some information may be estimated and is not guaranteed. Please verify schools with USD 262. Show all description
Community
- School District: Valley Center Pub School (USD 262)
- Elementary School: Valley Center
- Middle School: Valley Center
- High School: Valley Center
- Community: WATERMARKE
Rooms in Detail
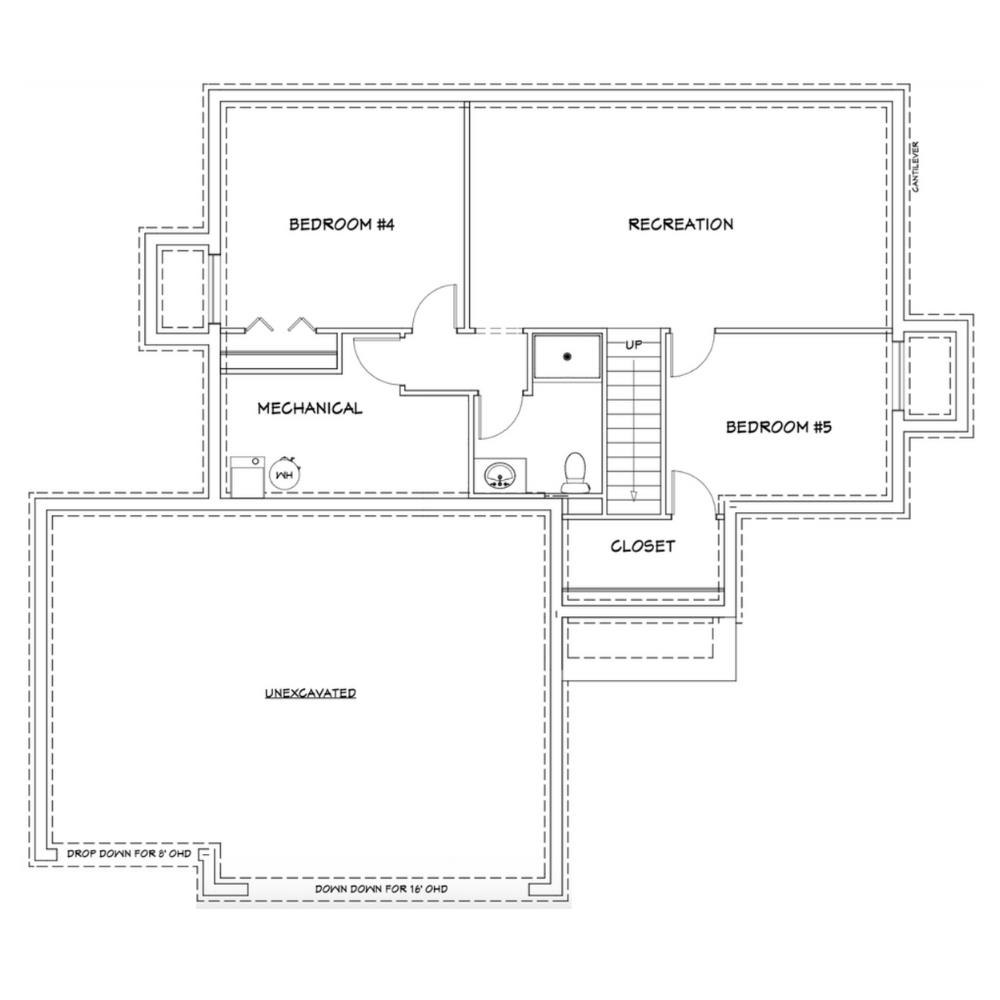
- Rooms: Room type Dimensions Level Master Bedroom 12' x 13' Main Living Room 13.5' x 14.5' Main Kitchen 8.5' x 9' Main Dining Room 8.5' x 10' Main Bedroom 10' x 10' Main Bedroom 9.5' x 10' Main Family Room 13' x 24.5' Basement Bedroom 13' x 14' Basement Bedroom 10' x 13' Basement
- Living Room: 1824
- Master Bedroom: Master Bdrm on Main Level, Master Bedroom Bath, Shower/Master Bedroom, Quartz Counters
- Appliances: Dishwasher, Disposal, Microwave, Range, Smoke Detector
- Laundry: Main Floor, Separate Room, 220 equipment
Listing Record
- MLS ID: SCK659975
- Status: Active
Financial
- Tax Year: 2025
Additional Details
- Basement: Finished
- Roof: Composition
- Heating: Forced Air, Natural Gas
- Cooling: Central Air, Electric
- Exterior Amenities: Guttering - ALL, Irrigation Pump, Irrigation Well, Sprinkler System, Frame w/Less than 50% Mas
- Interior Amenities: Ceiling Fan(s), Vaulted Ceiling(s), Smoke Detector(s)
- Approximate Age: New
Agent Contact
- List Office Name: J Russell Real Estate
- Listing Agent: Alec, Davis
Location
- CountyOrParish: Sedgwick
- Directions: West of Meridian on 53rd St., West on 53rd St. to Saint Paul St. (Watermarke Entrance), North on Saint Paul St., follow Saint Paul St. to Saint Paul Ct., turn right on Saint Paul Ct., home is at the end of the street on the left.