Residential4260 N Rushwood Ct
At a Glance
- Year built: 1995
- Bedrooms: 4
- Bathrooms: 3
- Half Baths: 0
- Garage Size: Attached, Opener, 2
- Area, sq ft: 2,594 sq ft
- Date added: Added 5 months ago
- Levels: One
Description
- Description: Beautiful Bel Air, Kansas Home for Sale Welcome to your dream home nestled in the serene community of Bel Air, Kansas! This stunning four-bedroom, three-bath residence offers an exquisite blend of modern elegance and cozy charm, perfect for families and entertaining alike. As you step inside, you'll be captivated by the brand-new kitchen, showcasing sleek quartz countertops that provide both beauty and functionality. The open-concept design flows seamlessly into the main living area, where the remarkable Austin Oak luxury vinyl plank flooring creates a warm and inviting atmosphere. The newly tiled fireplace in the main living room adds a touch of sophistication, making it the ideal gathering spot for family and friends. The main level also features a formal dining space, perfect for hosting dinner parties and holiday celebrations. Retreat to the spacious primary suite, where the updated master bath boasts luxurious Austin Oak flooring and elegant quartz countertops, offering a tranquil escape at the end of the day. Venture downstairs to discover a large living room that offers additional space for relaxation or entertaining guests. The basement also includes a cozy bedroom, a well-appointed bath, and an additional bonus room, providing versatility for your family's needs. Step outside to your private backyard oasis, surrounded by lush woods that ensure complete privacy. Enjoy the great outdoors from your large covered deck, perfect for morning coffee or evening gatherings. An outdoor storage shed with power adds even more convenience to this already impressive property. The home is equipped with a sprinkler system, ensuring your lawn remains vibrant and lush all year round. Freshly painted inside and out, this home is move-in ready and waiting for your personal touch. Located just minutes from the K-96 Highway, you'll have quick access to the city, allowing you to reach your favorite destinations in just 15 minutes. Don't miss this incredible opportunity to own a piece of paradise in Bel Air, Kansas! Schedule your private showing today! The owner is a licensed agent/broker in the state of Kansas. Show all description
Community
- School District: Wichita School District (USD 259)
- Elementary School: Isely Magnet (NH)
- Middle School: Stucky
- High School: Heights
- Community: SUMMIT 2ND
Rooms in Detail
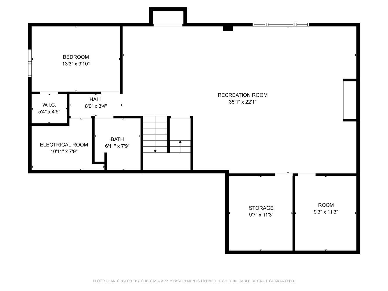
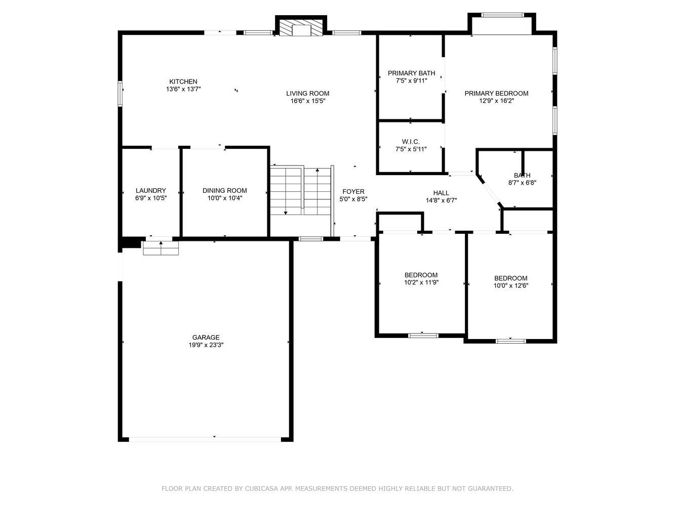
- Rooms: Room type Dimensions Level Master Bedroom 12 x 17 Main Living Room 13 x 17 Main Kitchen 11 x 13 Main Bedroom 10 x 12 Main Bedroom 10 x 13 Main Bedroom 10 x 13 Basement Recreation Room 18 x 33 Basement Dining Room 10 x 10 Main
- Living Room: 2594
- Master Bedroom: Master Bdrm on Main Level, Sep. Tub/Shower/Mstr Bdrm, Quartz Counters
- Appliances: Dishwasher, Disposal, Microwave, Range
- Laundry: Main Floor, Separate Room
Listing Record
- MLS ID: SCK652252
- Status: Sold-Co-Op w/mbr
Financial
- Tax Year: 2024
Additional Details
- Basement: Finished
- Roof: Composition
- Heating: Forced Air, Natural Gas
- Cooling: Central Air, Electric
- Exterior Amenities: Dock, Guttering - ALL, Sprinkler System, Frame w/Less than 50% Mas, Brick
- Interior Amenities: Ceiling Fan(s), Walk-In Closet(s), Wet Bar
- Approximate Age: 21 - 35 Years
Agent Contact
- List Office Name: Keller Williams Signature Partners, LLC
- Listing Agent: Lucas, Johnson
- Agent Phone: (316) 214-1422
Location
- CountyOrParish: Sedgwick
- Directions: From 37th and woodlawn, head N on woodlawn to Perryton, East onto rushwood and north to home.