Residential3625 W Longleaf St
At a Glance
- Builder: T. W. Custom Homes Inc.
- Year built: 2026
- Bedrooms: 3
- Bathrooms: 2
- Half Baths: 0
- Garage Size: Attached, Opener, 2
- Area, sq ft: 1,259 sq ft
- Date added: Added 2 months ago
- Levels: One
Description
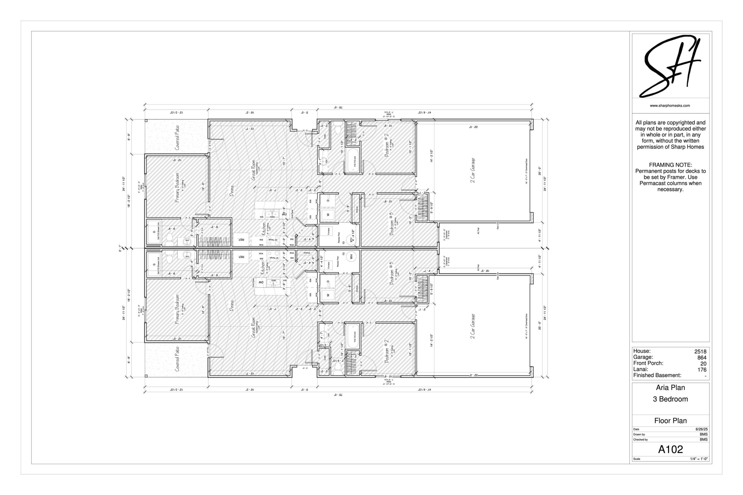
- Description: Welcome to our Aria Floorplan. The Pineway Community is a brand-new multi-family neighborhood located in Northwest Wichita. This community will offer a unique blend of modern living and natural beauty, with well-designed duplex homes in the Maize School District. Pineway will offer residents a peaceful and friendly atmosphere, making it a charming community to call home. Whether you’re a first-time homebuyer, family, or empty nester, the Pineway community is the perfect place to start your next chapter, with the added bonus of lawn maintenance that is covered with your HOA. With its combination of comfort, convenience, and easy access to 21st Street, Zoo Boulevard, K-96 and 235, this neighborhood is the ideal location for anyone looking for a balanced and fulfilling lifestyle. Show all description
Community
- School District: Maize School District (USD 266)
- Elementary School: Maize USD266
- Middle School: Maize
- High School: Maize
- Community: NONE LISTED ON TAX RECORD
Rooms in Detail
- Rooms: Room type Dimensions Level Master Bedroom 12x12 Main Living Room 15x15 Main Kitchen 8x12 Main Bedroom 10x10 Main Bedroom 10x10 Main
- Living Room: 1259
- Master Bedroom: Master Bdrm on Main Level, Split Bedroom Plan, Shower/Master Bedroom, Quartz Counters
- Appliances: Dishwasher, Disposal, Microwave, Range
- Laundry: Main Floor, Separate Room, 220 equipment
Listing Record
- MLS ID: SCK668051
- Status: Active
Financial
- Tax Year: 0
Additional Details
- Basement: None
- Roof: Composition
- Heating: Forced Air, Natural Gas
- Cooling: Central Air, Electric
- Exterior Amenities: Sprinkler System, Frame w/Less than 50% Mas
- Interior Amenities: Ceiling Fan(s), Walk-In Closet(s)
- Approximate Age: New
Agent Contact
- List Office Name: Lange Real Estate
- Listing Agent: Lindsey, Pfeifer
Location
- CountyOrParish: Sedgwick
- Directions: 21st & Hoover, east on 21st to West St, north on West St, right on Longleaf St.