Residential3615 W Longleaf Circle
At a Glance
- Builder: T. W. Custom Homes Inc.
- Year built: 2026
- Bedrooms: 3
- Bathrooms: 2
- Half Baths: 1
- Garage Size: Attached, Opener, 2
- Area, sq ft: 1,512 sq ft
- Date added: Added 2 months ago
- Levels: Two
Description
- Description: Welcome to our Tracy Floorplan. The Pineway Community is a brand-new multi-family neighborhood located in Northwest Wichita. This community will offer a unique blend of modern living and natural beauty, with well-designed duplex homes in the Maize School District. Pineway will offer residents a peaceful and friendly atmosphere, making it a charming community to call home. Whether you’re a first-time homebuyer, family, or empty nester, the Pineway community is the perfect place to start your next chapter, with the added bonus of lawn maintenance that is covered with your HOA. With its combination of comfort, convenience, and easy access to 21st Street, Zoo Boulevard, K-96 and 235, this neighborhood is the ideal location for anyone looking for a balanced and fulfilling lifestyle. Show all description
Community
- School District: Maize School District (USD 266)
- Elementary School: Maize USD266
- Middle School: Maize
- High School: Maize
- Community: NONE LISTED ON TAX RECORD
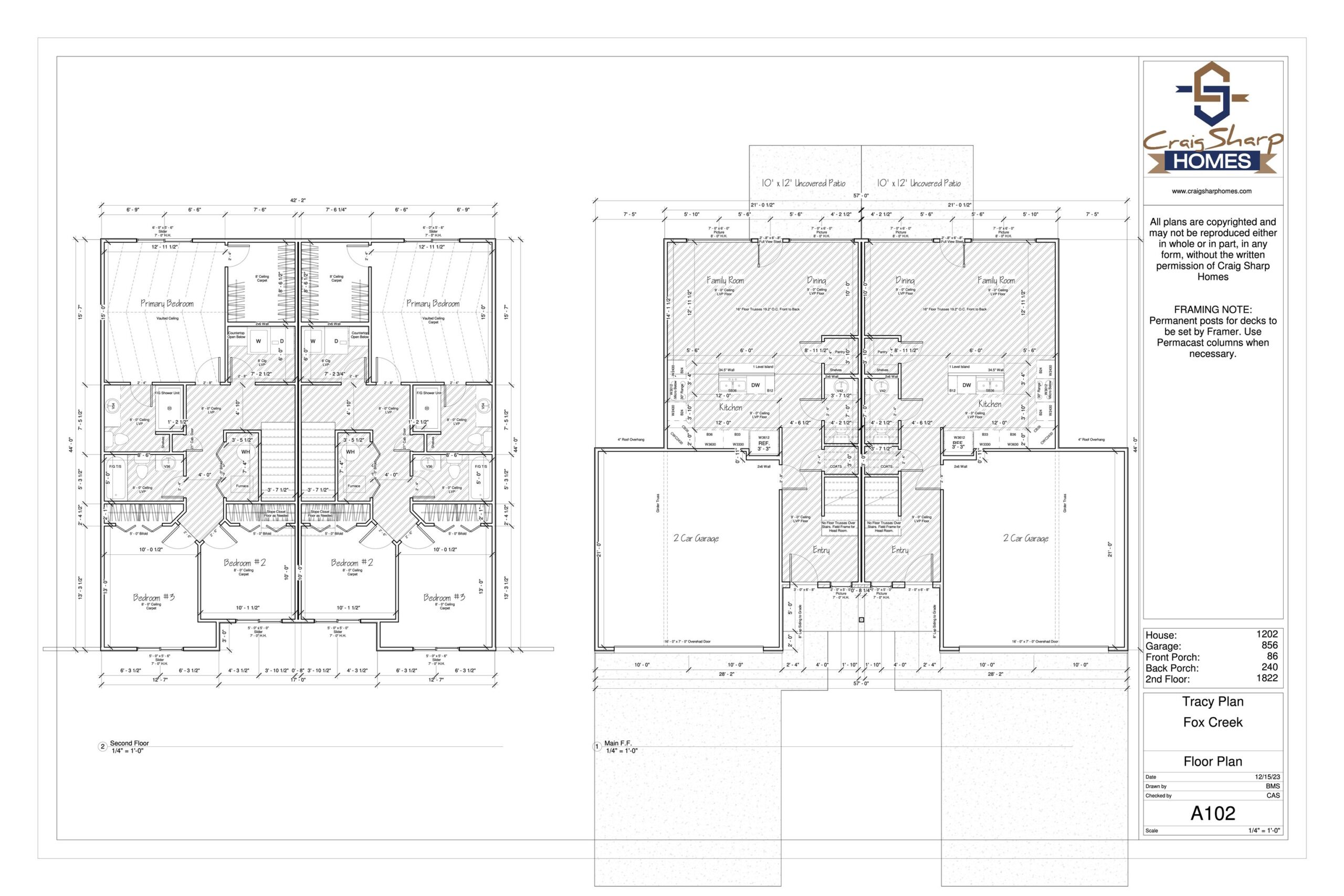
Rooms in Detail
- Rooms: Room type Dimensions Level Master Bedroom 15x12 Upper Living Room 19x12 Main Kitchen 12x10 Main Bedroom 13x10 Upper Bedroom 10x10 Upper
- Living Room: 1512
- Master Bedroom: Master Bdrm on Sep. Floor, Master Bedroom Bath, Shower/Master Bedroom, Quartz Counters
- Appliances: Dishwasher, Disposal, Microwave, Range
- Laundry: Upper Level, Separate Room, 220 equipment
Listing Record
- MLS ID: SCK668036
- Status: Active
Financial
- Tax Year: 2025
Additional Details
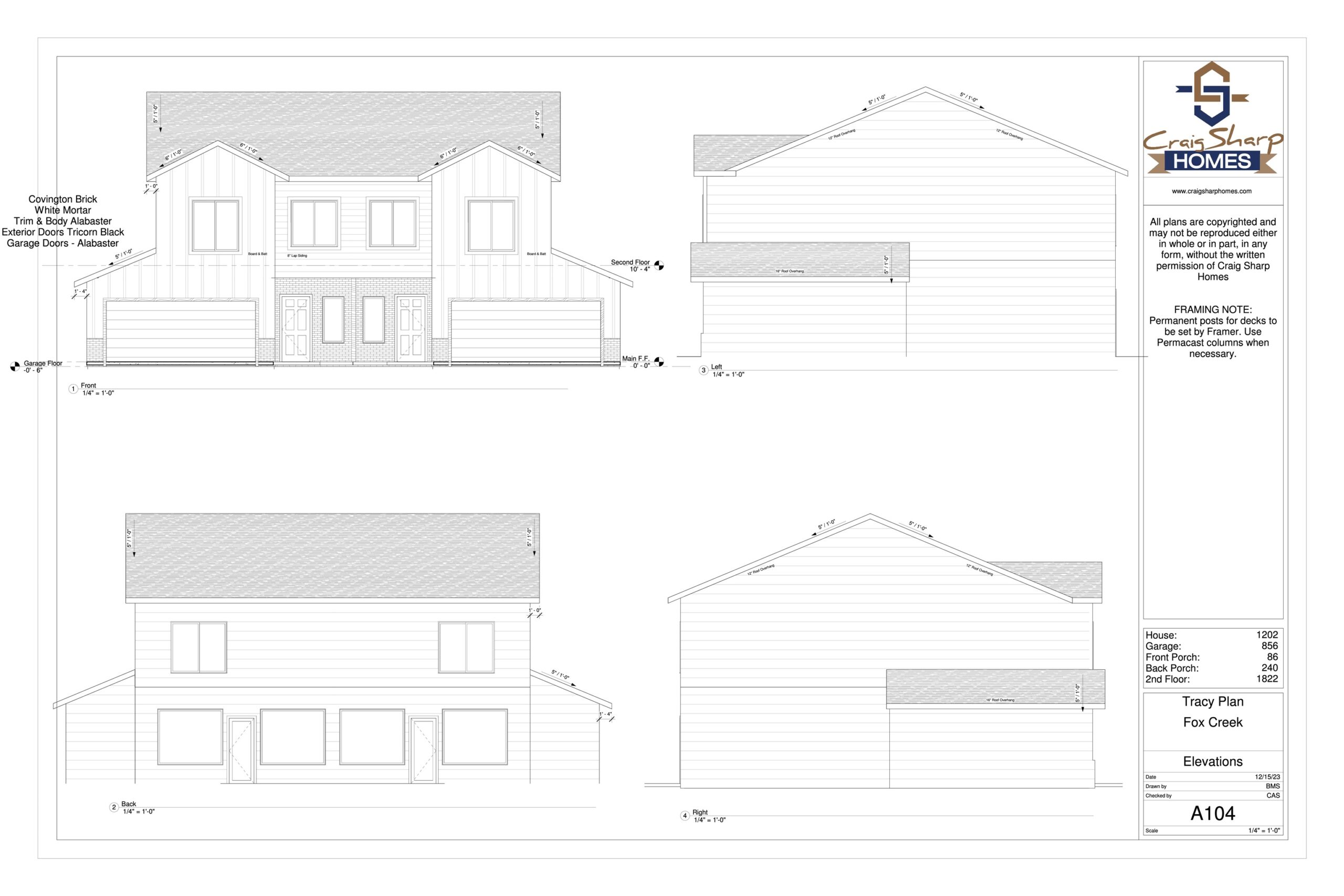
- Basement: None
- Roof: Composition
- Heating: Forced Air, Natural Gas
- Cooling: Central Air, Electric
- Exterior Amenities: Sprinkler System, Frame w/Less than 50% Mas
- Interior Amenities: Walk-In Closet(s)
- Approximate Age: New
Agent Contact
- List Office Name: Lange Real Estate
- Listing Agent: Lindsey, Pfeifer
Location
- CountyOrParish: Sedgwick
- Directions: 21st & Hoover, east on 21st to West St, north on West St, right on Longleaf St.