At a Glance
- Year built: 2025
- Builder: Liberty Communities
- Bedrooms: 4
- Bathrooms: 2
- Half Baths: 0
- Garage Size: Attached, 2
- Area, sq ft: 1,610 sq ft
- Date added: Added 3 months ago
- Levels: One
Description
- Description: Welcome to the Georgetown floor plan by Liberty Communities! This one-story home features 4 carpeted bedrooms, 2 bathrooms, a kitchen with granite counter tops and one large pantry, LVP flooring, window blinds, a concrete patio, and a 2-car garage with a FEMA approved storm shelter. The following appliances are included: stove/oven, microwave, refrigerator, dishwasher, washer and dryer. Irrigation, sod, and one tree are also included. *Home is under construction. Photo is a rendering of the home. Color of home will be Amazing Gray with Alabaster trim. *Interior photos are from a previously built version of this plan. Show all description
Community
- School District: Derby School District (USD 260)
- Elementary School: Park Hill
- Middle School: Derby North
- High School: Derby
- Community: Sterling East
Rooms in Detail
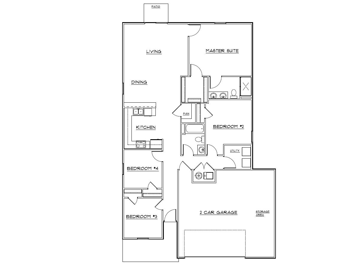
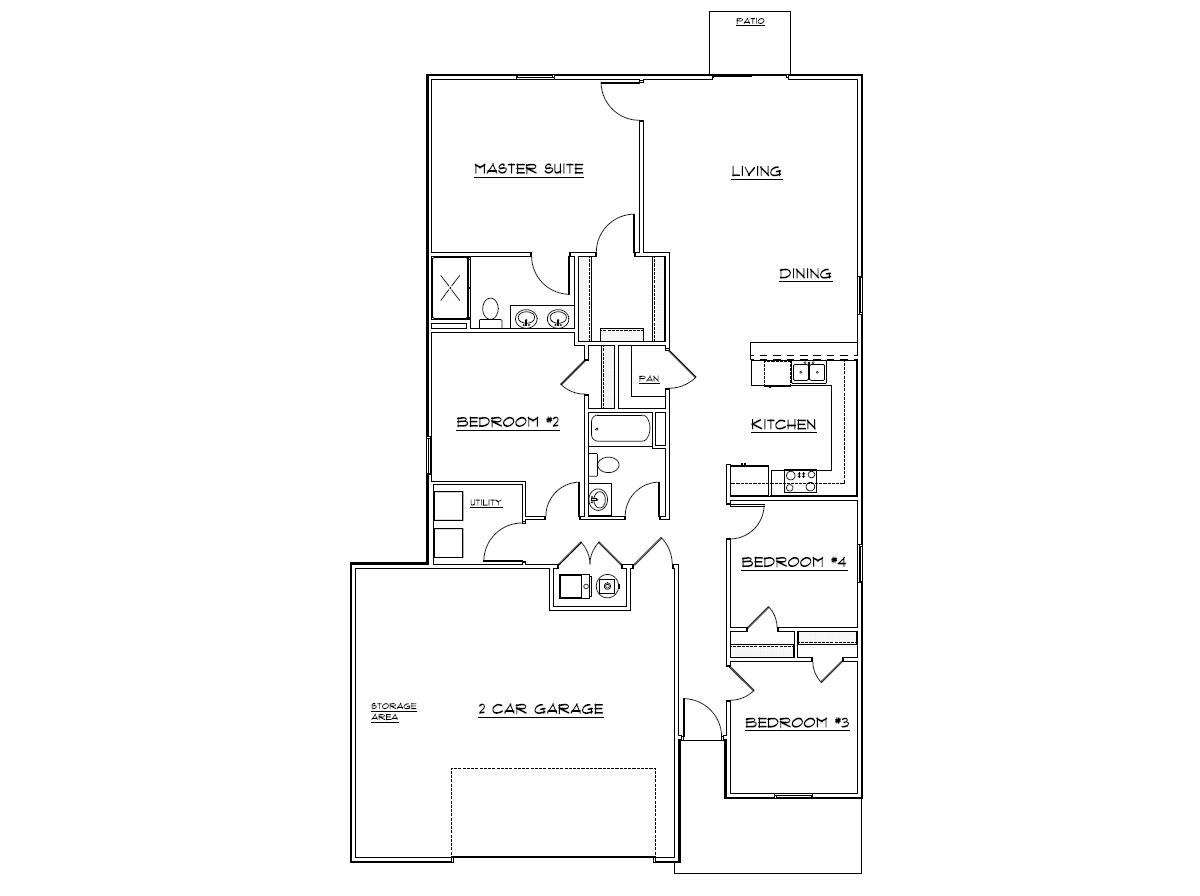
- Rooms: Room type Dimensions Level Master Bedroom 16.7 x 14.2 Main Living Room 17.5 x 14.2 Main Kitchen 11.8 x 11.8 Main
- Living Room: 1610
- Laundry: Main Floor, Separate Room
Listing Record
- MLS ID: SCK647931
- Status: Sold-Co-Op w/mbr
Financial
- Tax Year: 2024
Additional Details
- Basement: None
- Roof: Composition
- Heating: Forced Air, Natural Gas
- Cooling: Central Air, Electric
- Exterior Amenities: Frame w/Less than 50% Mas
- Approximate Age: Under Construction
Agent Contact
- List Office Name: Berkshire Hathaway PenFed Realty
- Listing Agent: Megan, Preedy
Location
- CountyOrParish: Sedgwick
- Directions: From Rock and Madison, proceed east on Madison past High Park. Turn right on Woodstone to enter the neighborhood.