Residential2915 E Menlo St
At a Glance
- Year built: 1949
- Bedrooms: 3
- Bathrooms: 1
- Half Baths: 1
- Garage Size: Attached, Opener, 2
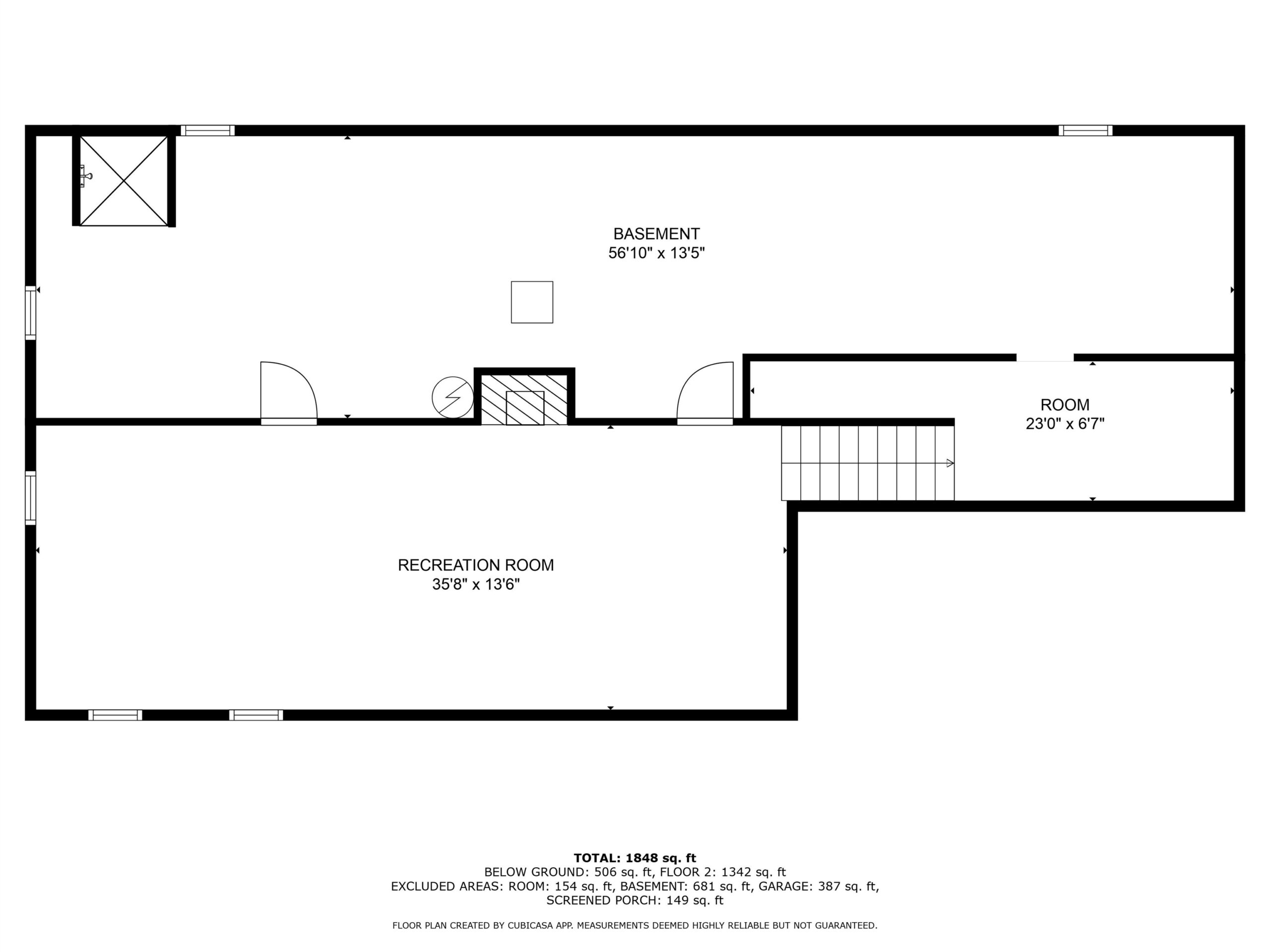
- Area, sq ft: 2,696 sq ft
- Date added: Added 5 months ago
- Levels: One
Description
- Description: Sellers may consider owner finance with enough downpayment! Nice full brick ranch! newer interior paint and new carpet, vinyl, huge basement with family room, and rec room, and storage, laundry on main floor, and basement, two cars garage, fenced yard. A must-see property! schedule to see today! All information deemed reliable but not guaranteed. Show all description
Community
- School District: Wichita School District (USD 259)
- Elementary School: Griffith
- Middle School: Mead
- High School: East
- Community: WOMERS
Rooms in Detail
- Rooms: Room type Dimensions Level Master Bedroom 13.5X13.5 Main Living Room 13.5X23.0 Main Kitchen 10.0X12.0 Main Bedroom 10.0X11.8 Main Bedroom 10.0X11.0 Main Family Room 13.5X36.0 Basement Dining Room 11.0X12.0 Main
- Living Room: 2696
- Master Bedroom: Master Bdrm on Main Level, Other Counters
- Appliances: Dishwasher, Disposal, Range
- Laundry: In Basement, Main Floor, 220 equipment
Listing Record
- MLS ID: SCK651808
- Status: Sold-Co-Op w/mbr
Financial
- Tax Year: 2024
Additional Details
- Basement: Finished
- Exterior Material: Stone
- Roof: Composition
- Heating: Forced Air, Natural Gas
- Cooling: Central Air, Electric
- Exterior Amenities: Guttering - ALL, Frame w/Less than 50% Mas, Brick
- Interior Amenities: Ceiling Fan(s), Window Coverings-All
- Approximate Age: 51 - 80 Years
Agent Contact
- List Office Name: Keller Williams Signature Partners, LLC
- Listing Agent: Chi, McKanlam
- Agent Phone: (316) 806-2859
Location
- CountyOrParish: Sedgwick
- Directions: Harry St. and Hillside St. North on Hillside from Harry St. to Menlo St. West to home.