Residential2884 S Maize Ct
At a Glance
- Builder: Liberty Communities
- Year built: 2026
- Bedrooms: 4
- Bathrooms: 2
- Half Baths: 0
- Garage Size: Attached, Opener, 2
- Area, sq ft: 1,601 sq ft
- Date added: Added 2 months ago
- Levels: One
Description
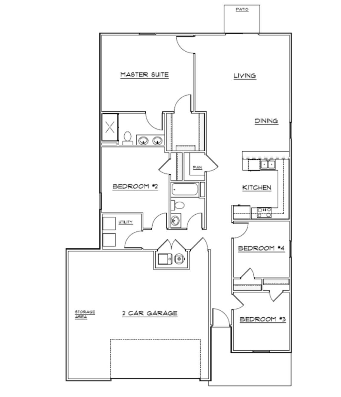
- Description: Welcome to the GEORGETOWN floor plan by LIBERTY COMMUNITIES! Over 1600 SF. FOUR BEDROOMS / TWO BATHROOMS. Kitchen features granite countertops, soft-close cabinets, a walk-in pantry, and ALL MAJOR APPLIANCES ARE INCLUDED! EVEN THE WASHER AND DRYER! Carpet in the bedrooms and closets, LVP flooring throughout the rest of the home! Window blinds. 2-car garage includes an opener and a FEMA approved storm shelter, plus extra storage space. Concrete patio in the back for outdoor living. Irrigation well, sod and sprinkler system included, along with a tree and some light landscaping. James Hardie cement siding, high efficiency HVAC, and more. GODDARD SCHOOLS!! *photos are from a previously built version of this plan* Show all description
Community
- School District: Goddard School District (USD 265)
- Elementary School: Earhart
- Middle School: Goddard
- High School: Robert Goddard
- Community: BAALMANN
Rooms in Detail
- Rooms: Room type Dimensions Level Master Bedroom 16.7 x 14.2 Main Living Room 17.5 x 14.2 Main Kitchen 11.8 x 11.8 Main Dining Room 10 x 8 Main Bedroom 11.8 x 12 Main Bedroom 10 x 10 Main Bedroom 10 x 10 Main
- Living Room: 1601
- Master Bedroom: Master Bdrm on Main Level, Master Bedroom Bath, Shower/Master Bedroom, Two Sinks, Granite Counters
- Appliances: Dishwasher, Disposal, Microwave, Refrigerator, Range, Washer, Dryer
- Laundry: Main Floor, Separate Room, 220 equipment
Listing Record
- MLS ID: SCK669188
- Status: Active
Financial
- Tax Year: 2025
Additional Details
- Basement: None
- Roof: Composition
- Heating: Forced Air, Natural Gas
- Cooling: Central Air, Electric
- Exterior Amenities: Guttering - ALL, Sprinkler System, Storm Shelter, Frame w/Less than 50% Mas
- Interior Amenities: Ceiling Fan(s), Walk-In Closet(s), Window Coverings-Part
- Approximate Age: New
Agent Contact
- List Office Name: Berkshire Hathaway PenFed Realty
- Listing Agent: Kristi, Hecker
Location
- CountyOrParish: Sedgwick
- Directions: From Pawnee and Maize Rd, south to Maize Ct, east to home. Or, from K42 and Maize Rd, north to Maize Ct, east to home.