Residential2335 Crest St
At a Glance
- Year built: 1965
- Bedrooms: 3
- Bathrooms: 1
- Half Baths: 1
- Garage Size: Attached, Opener, 2
- Area, sq ft: 2,079 sq ft
- Floors: Hardwood
- Date added: Added 5 months ago
- Levels: One
Description
- Description: Welcome to this all-brick farmhouse-style home nestled in Augusta! With 3 bedrooms, 1.5 bathrooms, and nearly 2, 100 total square feet, this property offers timeless charm with practical space for everyday living. Inside, you'll find beautifully maintained hardwood floors throughout the main level, a spacious kitchen featuring solid surface countertops, rich solid wood cabinetry, a built-in oven, and stainless steel appliances. The attached 2-car garage provides convenience, while the full basement offers bonus square footage for storage, hobbies, or future finishing touches. Step out back to a fully fenced yard with a perfect grilling space on the deck next to your very own in-ground pool! Located minutes from Castle Park Splash Pad and local Augusta amenities, this home is perfect for a first-time buyer or anyone looking to downsize with style. Don't let this one pass you by! Show all description
Community
- School District: Augusta School District (USD 402)
- Elementary School: Ewalt
- Middle School: Augusta
- High School: Augusta
- Community: NORTH BROADWAY HEIGHTS
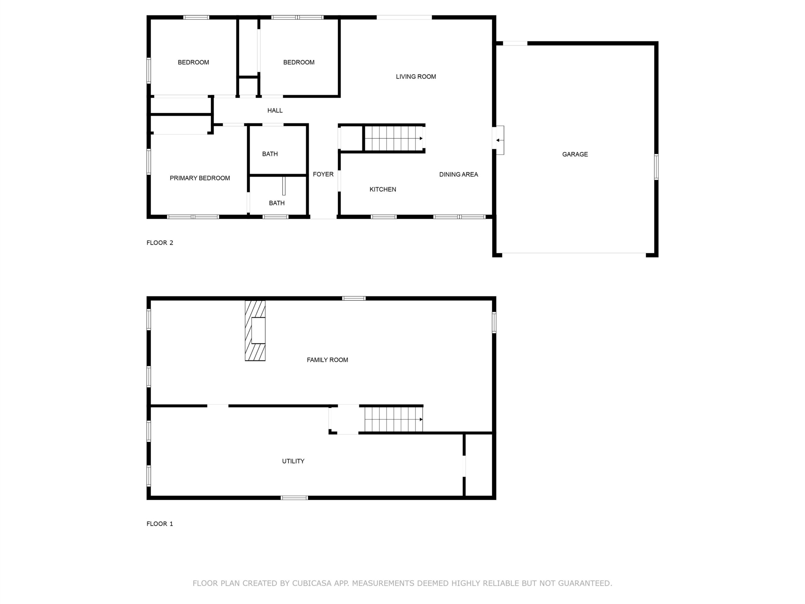
Rooms in Detail
- Rooms: Room type Dimensions Level Master Bedroom 12.5 x 11 Main Living Room 18.8 x 13.04 Main Kitchen 12 x 8 Main Bedroom 10.4 x 9.4 Main Bedroom 10 x 10 Main Recreation Room 15.4 x 13.3 Basement Family Room 27.4 x 13.3 Basement Foyer 6x3 Main
- Living Room: 2079
- Master Bedroom: Master Bdrm on Main Level, 1/2 Bath/Master Bedroom, Granite Counters
- Appliances: Dishwasher, Disposal, Microwave, Range
- Laundry: In Basement, Separate Room, 220 equipment
Listing Record
- MLS ID: SCK659076
- Status: Active
Financial
- Tax Year: 2025
Additional Details
- Basement: Finished
- Roof: Composition
- Heating: Forced Air, Natural Gas
- Cooling: Central Air, Electric
- Exterior Amenities: Guttering - ALL, Frame w/Less than 50% Mas, Brick
- Interior Amenities: Ceiling Fan(s), Window Coverings-Part
- Approximate Age: 51 - 80 Years
Agent Contact
- List Office Name: Berkshire Hathaway PenFed Realty
- Listing Agent: Cindy, Crain
- Agent Phone: (316) 644-8396
Location
- CountyOrParish: Butler
- Directions: From Andover: take 21st east to Augusta, turn S right on Ohio, turn E left on Belmont, turn E right on Crest, home is on the right. From Kellogg: to Augusta, turn N on Osage, E right on Main, N Left on Ohio, drive 5 miles turn E right on Akron, turn N left on Crest. Home is on your left.