Residential Income2120-2122 E Plaza Court
At a Glance
- Year built: 2025
- Area, sq ft: 2,140 sq ft
- Floors: Other
- Date added: Added 7 months ago
Description
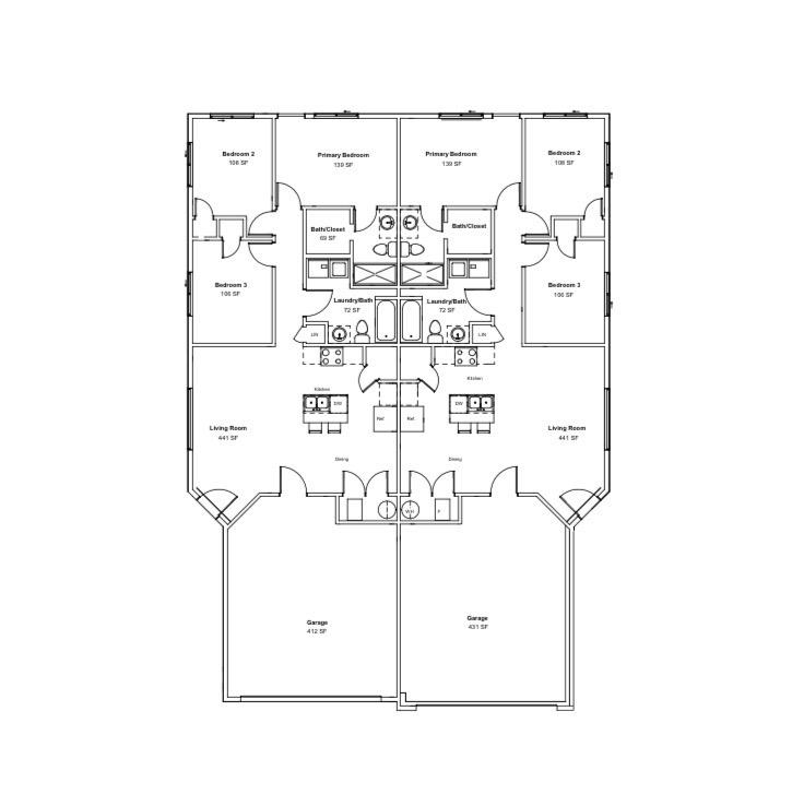
- Description: Welcome to Country Plaza Villas, a quiet and convenient community in the heart of Haysville. This newly built duplex offers a rare opportunity for investors, multi-family buyers, or anyone looking to combine comfort, quality, and low-maintenance living in a growing area. Each side of this beautifully designed property features 3 bedrooms, 2 bathrooms, and a spacious 1, 071 square feet of modern living space — totaling 2, 142 square feet for the full duplex. Every detail has been thoughtfully crafted to provide an open, functional layout that feels warm and inviting from the moment you step inside. The interior design showcases today’s most desirable finishes, including luxury vinyl plank flooring for easy maintenance and lasting durability. The kitchen is a true centerpiece, featuring granite countertops, modern cabinetry, and sleek appliances that make cooking and entertaining a pleasure. The open-concept living and dining area flows seamlessly together, creating an ideal space for everyday living or hosting guests. HOA amounts have not been finalized. Buyer's agent to verify any information deemed necessary to buyer. Show all description
Community
- School District: Haysville School District (USD 261)
- Elementary School: Nelson
- Middle School: Haysville
- High School: Campus
Rooms in Detail
- Living Room: 2140
- Appliances: Dishwasher, Disposal, Microwave, Range
Listing Record
- MLS ID: SCK663908
- Status: Active
Financial
- Tax Year: 30
Additional Details
- Basement: None
- Exterior Material: Frame
- Roof: Composition
- Heating: Electric
- Cooling: Electric
- Approximate Age: New
- ParkingTotal: 8
Agent Contact
- List Office Name: Lange Real Estate
- Listing Agent: Christopher, Friend
Location
- CountyOrParish: Sedgwick
- Directions: FROM BROADWAY AND GRAND GO EAST TO PLAZA DRIVE AND TURN NORTH. THEN TURN EAST ON PLAZA COURT.