Residential2012 S Crestline St
At a Glance
- Year built: 2003
- Bedrooms: 5
- Bathrooms: 3
- Half Baths: 0
- Garage Size: Attached, Opener, Oversized, 3
- Area, sq ft: 2,762 sq ft
- Floors: Hardwood, Laminate
- Date added: Added 5 months ago
- Levels: Bi-Level
Description
- Description: Welcome to this stunning real estate opening with the perfect blend of comfort, style, and functionality. RV parking, don't miss out on the opportunity to own this exceptional home. Show all description
Community
- School District: Wichita School District (USD 259)
- Elementary School: Earhart
- Middle School: Goddard
- High School: Robert Goddard
- Community: SHELLY ORCHARD
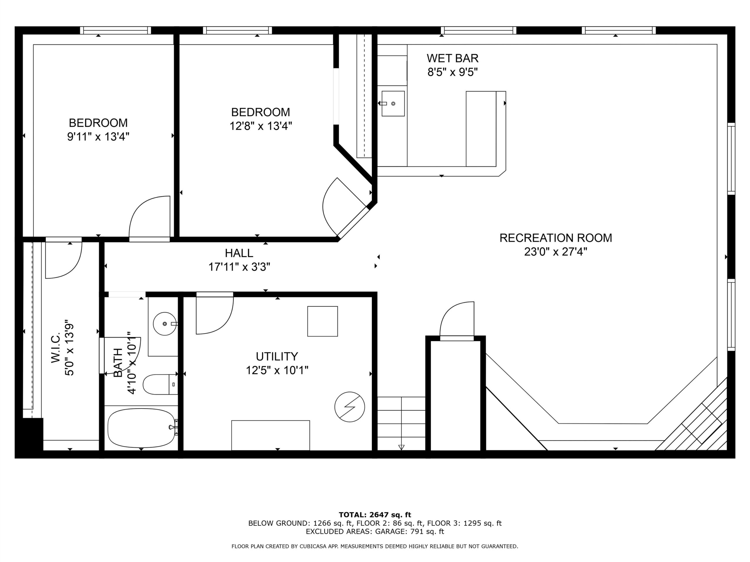
Rooms in Detail
- Rooms: Room type Dimensions Level Master Bedroom 15.0X14.0 Main Living Room 20.0.0X20.0 Main Kitchen 13.00X9.0 Main Dining Room 12.0X11.5 Main Bedroom 14.0X12.0 Main Bedroom 10.0.0X10.0 Main Family Room 24.0X27.0 Lower Bedroom 12.0X11.0 Lower Bedroom 13.0.0X10.0 Lower
- Living Room: 2762
- Master Bedroom: Master Bdrm on Main Level, Master Bedroom Bath, Shower/Master Bedroom, Sep. Tub/Shower/Mstr Bdrm, Two Sinks
- Appliances: Dishwasher, Disposal, Microwave, Refrigerator, Range
- Laundry: Lower Level, Separate Room, 220 equipment
Listing Record
- MLS ID: SCK655808
- Status: Sold-Co-Op w/mbr
Financial
- Tax Year: 2024
Additional Details
- Basement: Lower Level
- Roof: Composition
- Heating: Forced Air, Natural Gas
- Cooling: Central Air, Electric
- Exterior Amenities: Guttering - ALL, Frame w/Less than 50% Mas, Brick
- Interior Amenities: Ceiling Fan(s), Walk-In Closet(s), Vaulted Ceiling(s), Window Coverings-All
- Approximate Age: 21 - 35 Years
Agent Contact
- List Office Name: Keller Williams Signature Partners, LLC
- Listing Agent: Chi, McKanlam
- Agent Phone: (316) 806-2859
Location
- CountyOrParish: Sedgwick
- Directions: Kellogg and Maize, South to Rita, East to Jewell, East to Crestline, South to Home.