Residential1823 S Red Oaks St
At a Glance
- Year built: 1993
- Bedrooms: 3
- Bathrooms: 2
- Half Baths: 0
- Garage Size: Attached, Opener, 2
- Area, sq ft: 2,260 sq ft
- Date added: Added 8 months ago
- Levels: One
Description
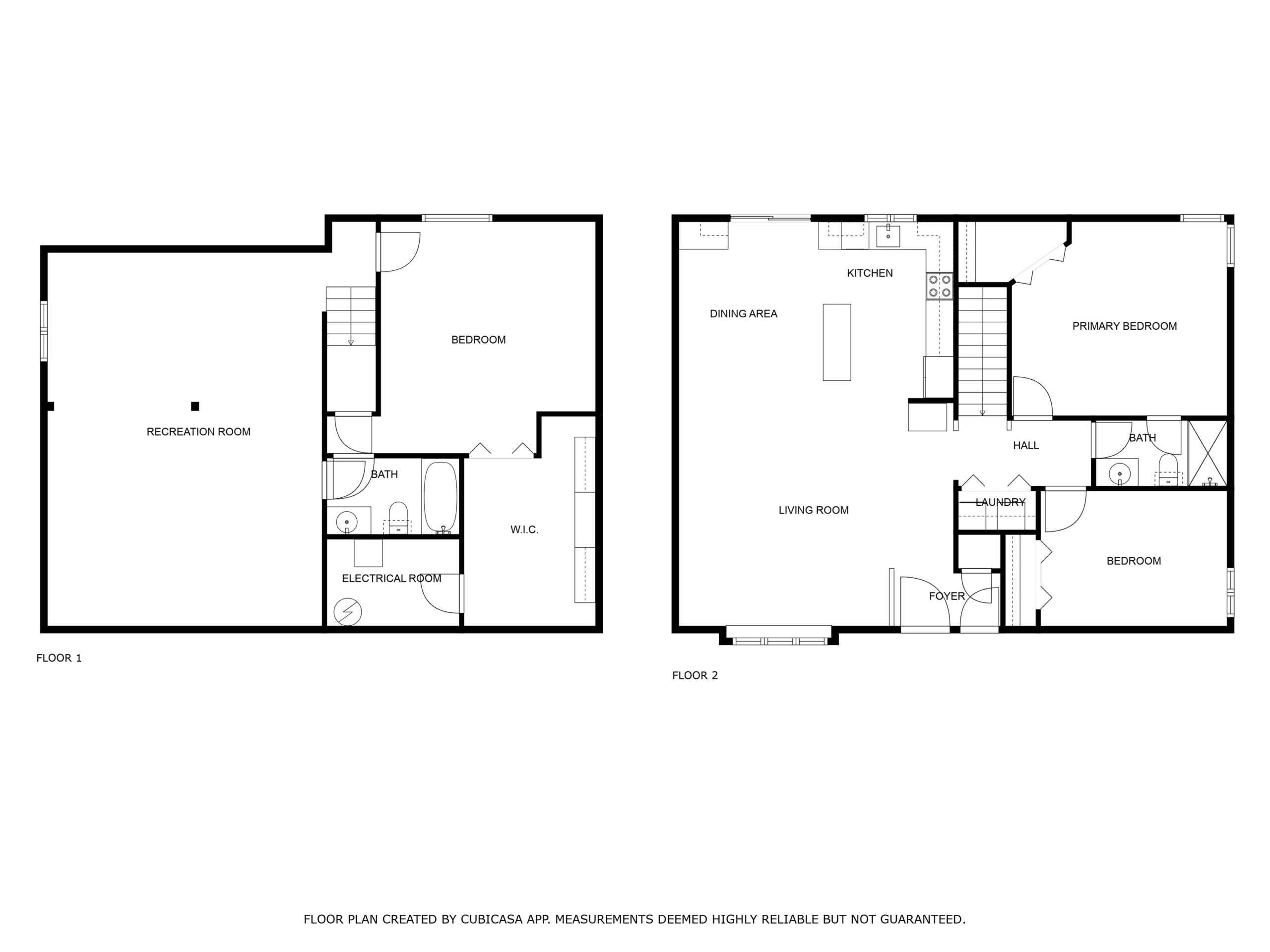
- Description: Welcome to this beautifully updated home in east Wichita! Great curb appeal, freshly painted exterior, fenced yard, covered patio and the open floor plan are ready for you to enjoy. This 3 bedroom, 2 bathroom home features vaulted ceilings, updated kitchen, new flooring, main floor laundry and the primary bedroom can be on the main floor or in the basement. The kitchen includes updated butcher block countertops, an island and updated fixtures. There are two bedrooms and a bathroom on the main floor. The third bedroom that is located in the basement has an egress window, huge closet and access to the second bathroom. Downstairs the spacious family room offers room for a game table and space for seating. Located near shopping and restaurants with easy access to Kellogg. Show all description
Community
- School District: Wichita School District (USD 259)
- Elementary School: Seltzer
- Middle School: Christa McAuliffe Academy K-8
- High School: Southeast
- Community: CRANBROOK
Rooms in Detail
- Rooms: Room type Dimensions Level Master Bedroom 15.5x14 Main Living Room 19.5x16 Main Kitchen 13x10.5 Main Dining Room 13x9.5 Main Bedroom 13x10 Main Family Room 26.5x23.5 Basement Bedroom 16.5x15.5 Basement
- Living Room: 2260
- Master Bedroom: Master Bdrm on Main Level
- Appliances: Dishwasher, Disposal, Refrigerator, Range
- Laundry: Main Floor
Listing Record
- MLS ID: SCK654204
- Status: Sold-Co-Op w/mbr
Financial
- Tax Year: 2024
Additional Details
- Basement: Finished
- Roof: Composition
- Heating: Forced Air
- Cooling: Central Air
- Exterior Amenities: Guttering - ALL, Sprinkler System, Frame w/Less than 50% Mas
- Interior Amenities: Ceiling Fan(s), Walk-In Closet(s), Vaulted Ceiling(s), Window Coverings-All
- Approximate Age: 21 - 35 Years
Agent Contact
- List Office Name: Reece Nichols South Central Kansas
- Listing Agent: Tiffani, Sorrells
- Agent Phone: (316) 260-9998
Location
- CountyOrParish: Sedgwick
- Directions: Harry & Webb east to Cranbrook, south to Funston, west to Red Oaks, south to home.