Residential17126 W Lawson Cir
At a Glance
- Builder: Greenhead Homes Llc.
- Year built: 2025
- Bedrooms: 3
- Bathrooms: 2
- Half Baths: 0
- Garage Size: Attached, Zero Entry, 2
- Area, sq ft: 1,112 sq ft
- Floors: Smoke Detector(s)
- Date added: Added 3 weeks ago
- Levels: One
Description
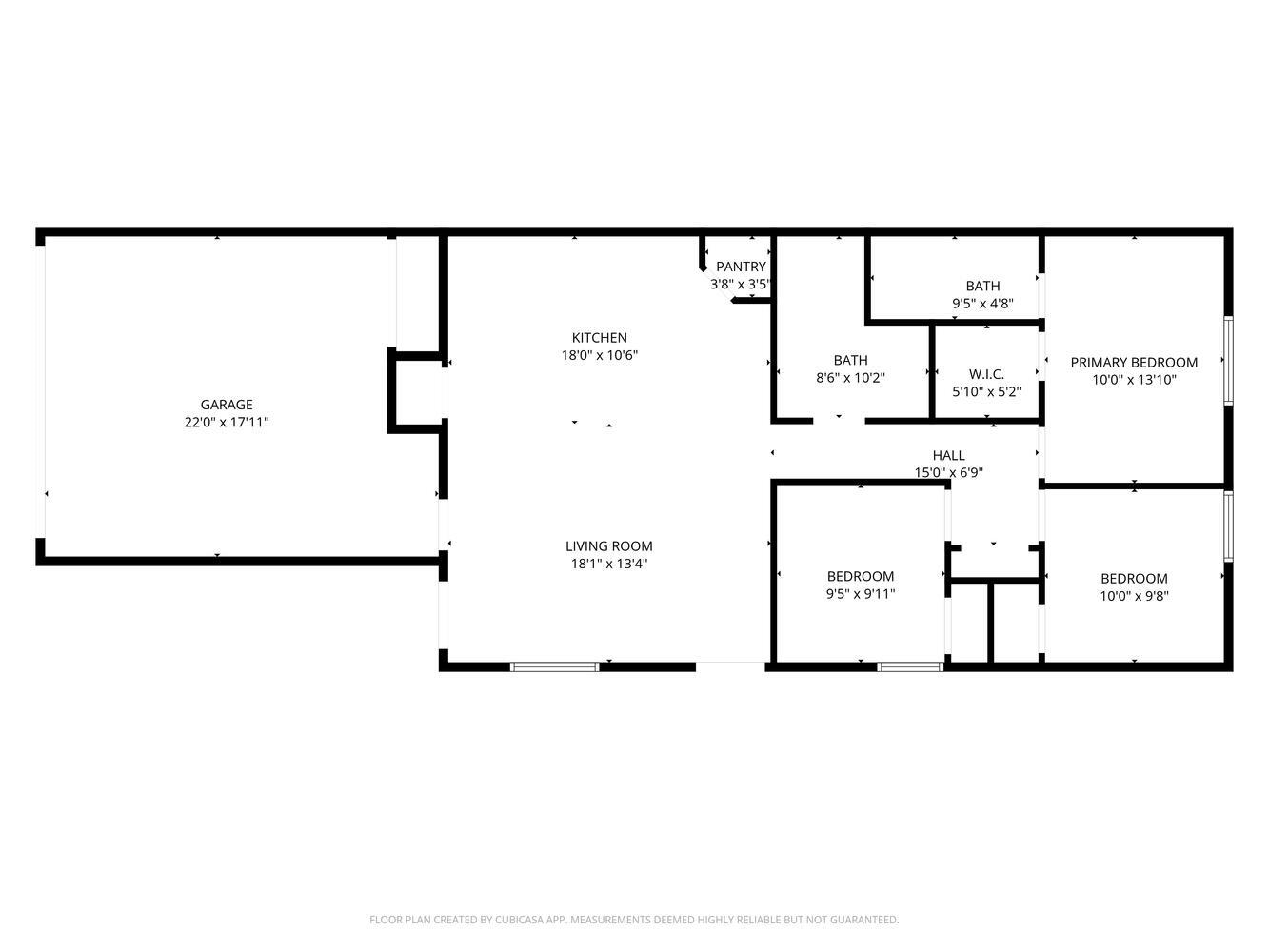
- Description: This duplex has 2 zero entry front and side doors with 3 bedrooms and 2 bathrooms, and a 2 car attached garage. They include luxury vinyl plank flooring throughout the property. The kitchen is fully equipped with a walk in pantry, bar seating and appliances including, range, microwave, refrigerator, and dishwasher. THIS PROPERTY IS A MUST SEE! INFORMATION DEEMED RELIABLE, BUT NOT GUARNTEED. TAX AND SPECIALS NOT FULLY ACCESSED Show all description
Community
- School District: Goddard School District (USD 265)
- Elementary School: Explorer
- Middle School: Dwight D. Eisenhower
- High School: Dwight D. Eisenhower
- Community: CYPRESS GLEN
Rooms in Detail
- Rooms: Room type Dimensions Level Master Bedroom 14.5' x 10.5' Main Living Room 18.5' x 11' Main Kitchen 10' x 10' Main
- Living Room: 1112
- Master Bedroom: Master Bdrm on Main Level, Shower/Master Bedroom, Quartz Counters
- Appliances: Dishwasher, Disposal, Microwave, Refrigerator, Range, Smoke Detector
- Laundry: Main Floor, 220 equipment
Listing Record
- MLS ID: SCK670403
- Status: Active
Financial
- Tax Year: 2025
Additional Details
- Basement: None
- Roof: Composition
- Heating: Forced Air, Natural Gas
- Cooling: Central Air, Electric
- Exterior Amenities: Guttering - ALL, Zero Step Entry, Frame w/Less than 50% Mas
- Interior Amenities: Ceiling Fan(s), Walk-In Closet(s), Smoke Detector(s)
- Approximate Age: Under Construction
Agent Contact
- List Office Name: Keller Williams Hometown Partners
- Listing Agent: Tanner, Ternes
Location
- CountyOrParish: Sedgwick
- Directions: Turn north from Kellogg onto 167th until taking a left hand turn onto Kashmir St. Follow Kashmir until a left turn onto Lawson St.