Residential15515 W 95th St S
At a Glance
- Year built: 1996
- Bedrooms: 4
- Bathrooms: 3
- Half Baths: 1
- Garage Size: Attached, Detached, Oversized, 4
- Area, sq ft: 3,147 sq ft
- Date added: Added 5 months ago
- Levels: One
Description
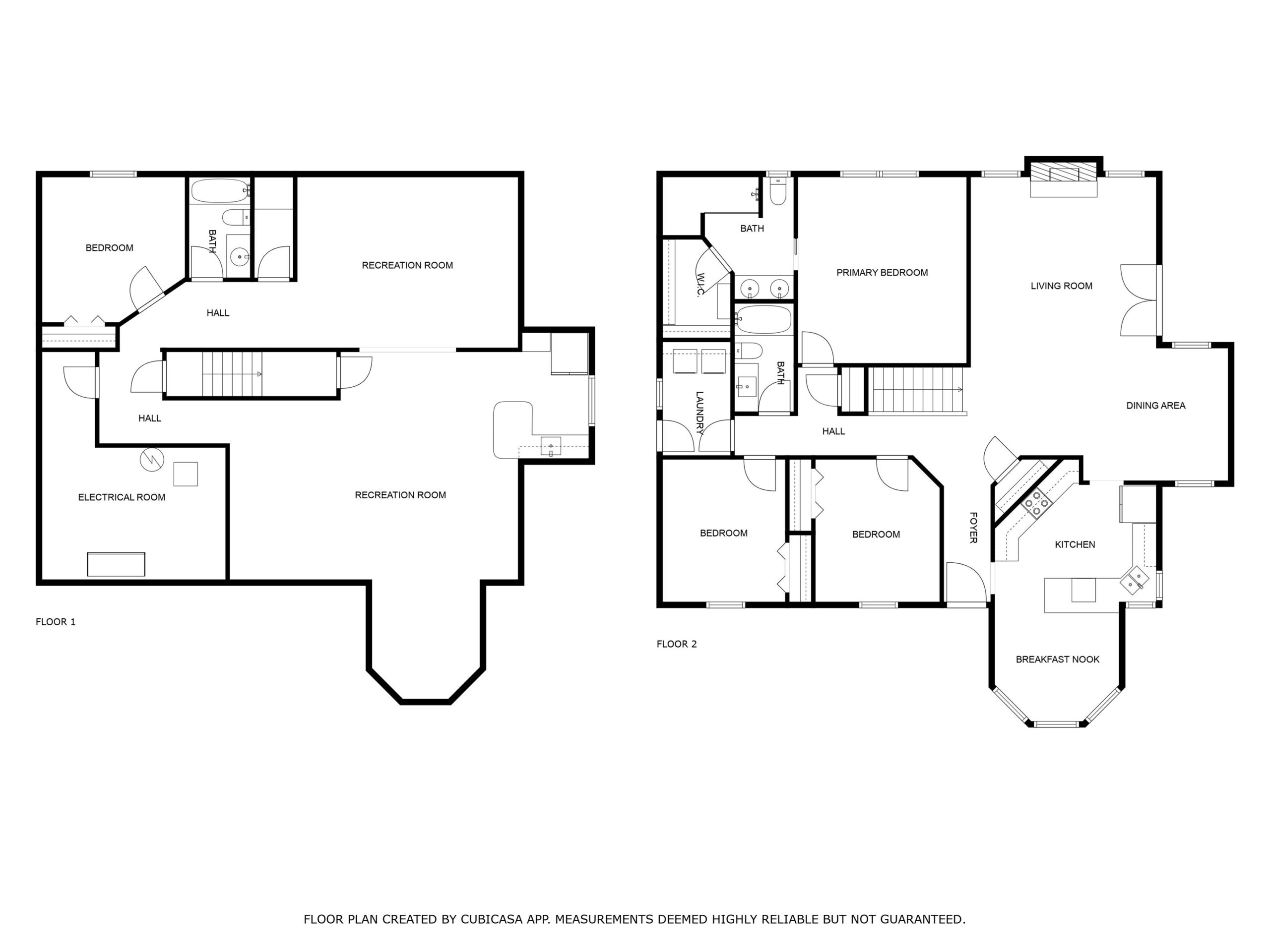
- Description: Welcome to your private slice of country paradise! This spacious 4-bedroom, 3.5-bathroom home offers over 3, 100 square feet of well-designed living space, perfectly situated on 5 fully fenced acres with direct access off blacktop—no gravel roads here! Step inside to a warm and inviting main level that includes a comfortable living room with a fireplace and a formal dining area. The large kitchen features beautiful granite countertops and a breakfast nook that’s perfect for casual meals and morning coffee. Just off the main living spaces, you'll find three bedrooms, including the primary suite with an attached bathroom featuring an updated floor-to-ceiling tiled spa shower. You’ll also find two additional bedrooms across the hall, a full hallway bathroom, and main floor laundry—creating a convenient layout and smooth flow for everyday living. Downstairs, the finished basement offers even more space to spread out and enjoy. It features a large family room, a dedicated recreational area with enough space for a gaming table, a wet bar for entertaining, an eating space, a fourth bedroom, and another full bathroom—perfect for guests, in-laws, teenagers, or a private home office. Outdoors, the amenities are just as impressive. Spend your summer days enjoying the saltwater pool with a diving board and an 8-foot deep end. Entertain in style under the detached covered patio and hot tub area, complete with overhead heaters, a convenient outdoor half bathroom, and a fire pit. There's also an attached screened-in and covered patio, giving you year-round enjoyment of your outdoor space. Need room for additional cars, toys, tools, or hobbies? The 24x24 outbuilding sits on an oversized 24x32 concrete pad and includes a covered lean-to on the back, providing plenty of storage and workspace options. For the shooting enthusiast, a 200+ yard single-lane shooting range with a 100-yard bench rest is already set up and ready to enjoy. And for peace of mind, the home features a brand-new impact-resistant Class 4 shingle roof, installed just last summer. This one-of-a-kind property offers the perfect blend of country living and modern amenities—room to roam, space to entertain, and features you won’t find just anywhere. Come see all that this incredible home has to offer! Show all description
Community
- School District: Clearwater School District (USD 264)
- Elementary School: Clearwater West
- Middle School: Clearwater
- High School: Clearwater
- Community: NONE LISTED ON TAX RECORD
Rooms in Detail
- Rooms: Room type Dimensions Level Master Bedroom 15x14 Main Living Room 23x15 Main Kitchen 12x13 Main Bedroom 10x12 Main Bedroom 10x12 Main Bedroom 11x12 Basement Dining Room 8x11 Main Family Room 19x14 Basement Additional Room 19x24 Basement Laundry 10x9 Main
- Living Room: 3147
- Master Bedroom: Master Bdrm on Main Level, Shower/Master Bedroom, Two Sinks, Granite Counters
- Appliances: Dishwasher, Disposal, Microwave, Refrigerator, Range
- Laundry: Main Floor, Separate Room
Listing Record
- MLS ID: SCK652511
- Status: Sold-Co-Op w/mbr
Financial
- Tax Year: 2024
Additional Details
- Basement: Finished
- Exterior Material: Frame
- Roof: Composition
- Heating: Forced Air, Natural Gas
- Cooling: Attic Fan, Central Air, Electric
- Exterior Amenities: Guttering - ALL, Hot Tub, Sprinkler System, Frame w/Less than 50% Mas
- Interior Amenities: Ceiling Fan(s), Walk-In Closet(s), Water Softener-Own, Vaulted Ceiling(s), Wet Bar
- Approximate Age: 21 - 35 Years
Agent Contact
- List Office Name: Keller Williams Signature Partners, LLC
- Listing Agent: Tyler, Sterrett
- Agent Phone: (316) 304-1197
Location
- CountyOrParish: Sedgwick
- Directions: South on 135 St W, turn West on W 95th St S to home.