Residential Income15215-15217 W Kristina St
At a Glance
- Year built: 2025
- Area, sq ft: 2,760 sq ft
- Floors: Other
- Date added: Added 11 months ago
Description
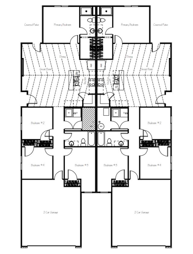
- Description: Welcome to this Beautifully designed duplex located in the brand new " Area 151" subdivision. " The Capella" featuring 4 spacious bedrooms, 2 full bathrooms, 2 car garage and a fully fences backyard. This home is perfect for families, first-time buyers, or investors seeking comfort, convivence and modern style. = Show all description
Community
- School District: Renwick School District (USD 267)
- Elementary School: St. Marks
- Middle School: St Marks
- High School: Andale
- Community: Area 151
Rooms in Detail
- Living Room: 2760
- Appliances: Dishwasher, Disposal, Microwave, Range
Listing Record
- MLS ID: SCK653814
- Status: Active
Financial
- Tax Year: 2025
Additional Details
- Basement: None
- Exterior Material: Frame
- Roof: Composition
- Heating: Electric
- Cooling: Electric
- Approximate Age: New
- ParkingTotal: 8
Agent Contact
- List Office Name: Berkshire Hathaway PenFed Realty
- Listing Agent: Carolyn, Stephenson
- Agent Phone: (316) 806-6686
Location
- CountyOrParish: Sedgwick
- Directions: Southwest Corner of N 151st St West and 21st St N