Residential1459 N Kokomo Ave
At a Glance
- Year built: 1960
- Bedrooms: 3
- Bathrooms: 1
- Half Baths: 0
- Garage Size: Attached, 1
- Area, sq ft: 1,040 sq ft
- Date added: Added 5 months ago
- Levels: One
Description
- Description: Have you been looking for a move-in ready home, within easy distance to lots of amenities and within the Derby School District? Come on down to Kokomo! There are so many great things packed into this home. Recent updates include an updated exterior vinyl & gutters (2022), new water pipes throughout (2023), and water heater (2023). Pulling up to the property, you'll see the attached one car garage and front flower beds with a great front porch that can accommodate a sitting area. The front entrance leads directly into the living area with a nice open window to the front. Off the living area is the kitchen and dining combo that leads to easy access for a grill and backyard access. Down the hallway, you’ll find all three bedrooms and a full bathroom. The yard is fully fenced, with a patio area and raised garden beds, along with a fire pit. A great spot for entertaining! Show all description
Community
- School District: Derby School District (USD 260)
- Elementary School: El Paso
- Middle School: Derby
- High School: Derby
- Community: PLEASANTVIEW
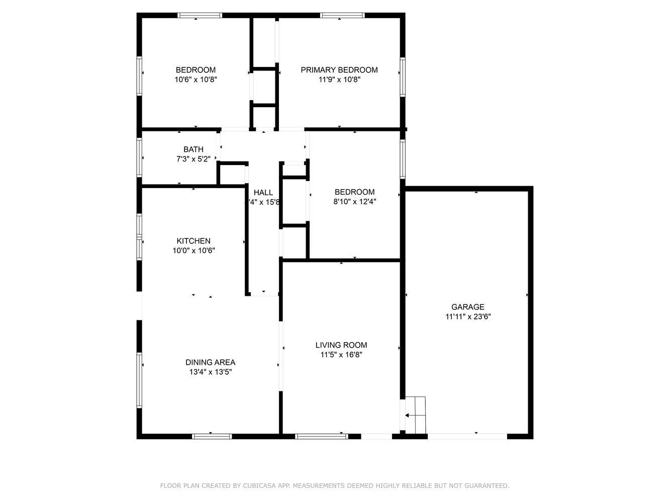
Rooms in Detail
- Rooms: Room type Dimensions Level Master Bedroom 11.5 x 10 Main Living Room 16.5 X 11 Main Kitchen 8 X 7 Main Dining Room 13 X 12.9 Main Bedroom 10.3 X 10.3 Main Bedroom 11.5 X 10 Main
- Living Room: 1040
- Master Bedroom: Master Bdrm on Main Level
- Appliances: Dishwasher, Disposal, Microwave, Refrigerator, Range
- Laundry: Main Floor, 220 equipment
Listing Record
- MLS ID: SCK650392
- Status: Sold-Co-Op w/mbr
Financial
- Tax Year: 2024
Additional Details
- Basement: None
- Roof: Composition
- Heating: Forced Air, Natural Gas
- Cooling: Central Air, Electric
- Exterior Amenities: Guttering - ALL, Frame w/Less than 50% Mas
- Interior Amenities: Ceiling Fan(s), Window Coverings-Part
- Approximate Age: 51 - 80 Years
Agent Contact
- List Office Name: Keller Williams Signature Partners, LLC
- Listing Agent: April, Richey
Location
- CountyOrParish: Sedgwick
- Directions: From Meadowlark & Buckner: Head E on Meadowlark. Turn S onto Kokomo, to the home. Home is on the corner of Meadowlark & Kokomo.