































At a Glance
- Year built: 2024
- Builder: Liberty Communities Llc
- Bedrooms: 4
- Bathrooms: 2
- Half Baths: 0
- Garage Size: Attached, 2
- Area, sq ft: 1,601 sq ft
- Date added: Added 3 months ago
- Levels: One
Description
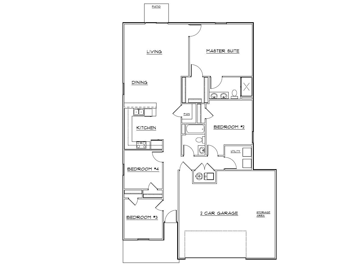
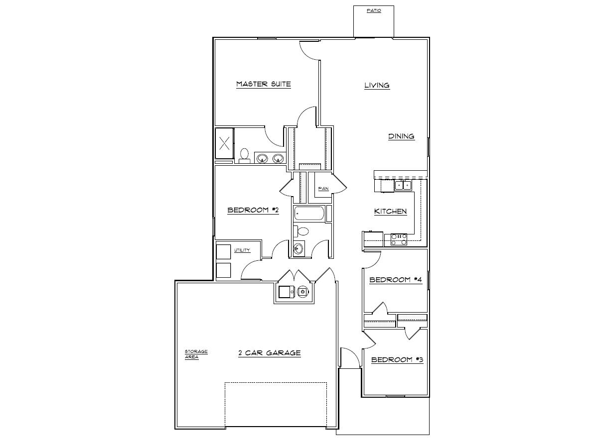
- Description: Welcome to 1307 Robin Dr, a delightful 4-bedroom, 2-bathroom home in McPherson. The spacious master bedroom is a peaceful retreat, and three additional bedrooms offer plenty of room for family or guests. The open living area features a cozy fireplace and large windows that flood the space with natural light. The updated kitchen is a highlight, complete with modern appliances, ample storage, and a convenient walk-in pantry to keep everything organized. A separate laundry room adds practicality to your daily routine, while the backyard awaits your personal touch to create your ideal outdoor space. Located in a friendly neighborhood with easy access to parks, schools, and local amenities, this home is both comfortable and convenient. Designed with the popular Georgetown plan, it’s a must-see! 10 year builders warranty! Show all description
Community
- School District: Mcpherson School District (USD 418)
- Elementary School: Washington
- Middle School: McPherson
- High School: McPherson
- Community: EASTLINK VILLAGE
Rooms in Detail
- Rooms: Room type Dimensions Level Master Bedroom 16.7 x 14.2 Main Living Room 17.5 x 14.2 Main Kitchen 11.8 x 11.8 Main Bedroom 11.9 by 11.2 Main Bedroom 10.2 by 9.1 Main Bedroom 9.1 by 9.1 Main
- Living Room: 1601
- Laundry: Main Floor, Separate Room
Listing Record
- MLS ID: SCK643537
- Status: Cancelled
Financial
- Tax Year: 2024
Additional Details
- Basement: None
- Roof: Composition
- Heating: Forced Air, Natural Gas
- Cooling: Central Air, Electric
- Exterior Amenities: Frame w/Less than 50% Mas
- Approximate Age: New
Agent Contact
- List Office Name: Berkshire Hathaway PenFed Realty
- Listing Agent: Blair, Hamilton
Location
- CountyOrParish: McPherson
- Directions: Follow I-135 N/US-81 N to US-56 W/US-81 BUS S in McPherson. Take exit 60 from I-135 N/US-81 N. Continue on US-56 W/US-81 BUS S. Take Centennial Dr and E A Ave/Kiowa Rd to Robin Dr off of Eastlinks Dr.