Residential12920 E Spring Valley St
At a Glance
- Builder: Liberty Communities Llc
- Year built: 2025
- Bedrooms: 3
- Bathrooms: 2
- Half Baths: 0
- Garage Size: Attached, 2
- Area, sq ft: 1,501 sq ft
- Date added: Added 2 months ago
- Levels: One
Description
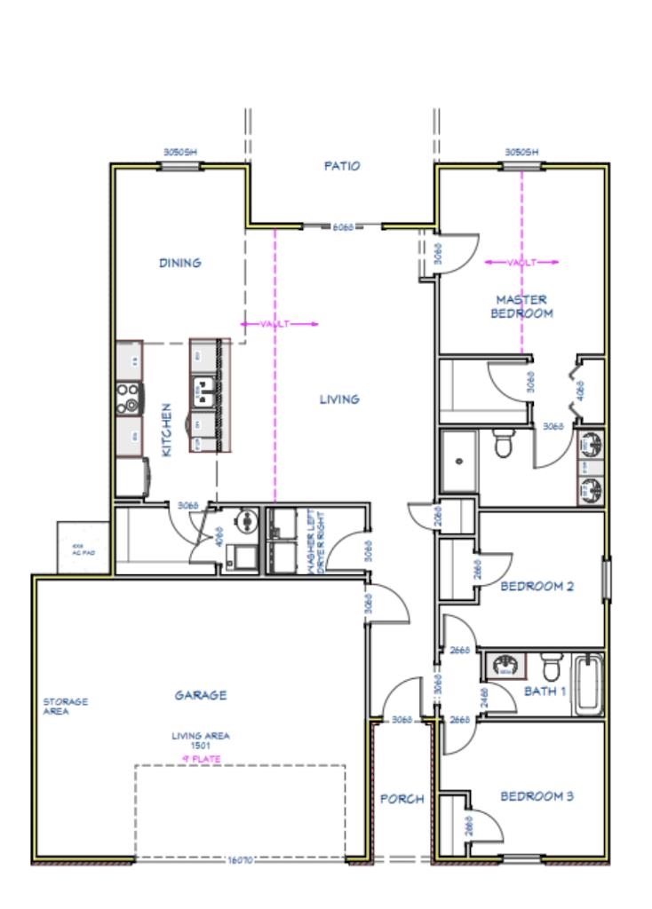
- Description: Welcome to the Independence floor plan by Liberty Communities! This 1-story home features 3 carpeted bedrooms, 2 full bathrooms, a kitchen with granite countertops and a spacious pantry. You’ll love the LVP flooring, window blinds, concrete patio, and the oversized 2-car garage with a FEMA-approved storm shelter. Plus, it comes with all the essential appliances—stove, microwave, refrigerator, dishwasher, washer, and dryer. The yard will be landscaped and an irrigation well and sprinklers are included. *Home is under construction. Exterior photos are a rendering of the home. Interior photos are from a previously built version of this plan.* Show all description
Community
- School District: Wichita School District (USD 259)
- Elementary School: Christa McAuliffe
- Middle School: Christa McAuliffe Academy K-8
- High School: Southeast
- Community: BELLE CHASE
Rooms in Detail
- Rooms: Room type Dimensions Level Master Bedroom 12.7 x 14.2 Main Living Room 16.8 x 20.11 Main Kitchen 7.9 x 12.5 Main Bedroom 9.7 x 10.4 Main Bedroom 12.7 x 10.4 Main
- Living Room: 1501
- Master Bedroom: Master Bdrm on Main Level, Shower/Master Bedroom, Granite Counters
- Appliances: Dishwasher, Disposal, Microwave, Refrigerator, Range, Washer, Dryer
- Laundry: Main Floor
Listing Record
- MLS ID: SCK665245
- Status: Pending
Financial
- Tax Year: 2025
Additional Details
- Basement: None
- Roof: Composition
- Heating: Forced Air, Natural Gas
- Cooling: Central Air, Electric
- Exterior Amenities: Guttering - ALL, Irrigation Well, Sprinkler System, Storm Shelter, Frame w/Less than 50% Mas
- Interior Amenities: Ceiling Fan(s), Walk-In Closet(s)
- Approximate Age: Under Construction
Agent Contact
- List Office Name: Berkshire Hathaway PenFed Realty
- Listing Agent: Lane, Mercado
Location
- CountyOrParish: Sedgwick
- Directions: From 127th and Harry, go North on 127th to Spring Valley St., East on Spring Valley St. to the property.