Residential1238 E Prairie Hill Cir
At a Glance
- Year built: 2021
- Bedrooms: 5
- Bathrooms: 3
- Half Baths: 0
- Garage Size: Attached, Opener, Side Load, 3
- Area, sq ft: 2,385 sq ft
- Floors: Laminate
- Date added: Added 5 months ago
- Levels: One
Description
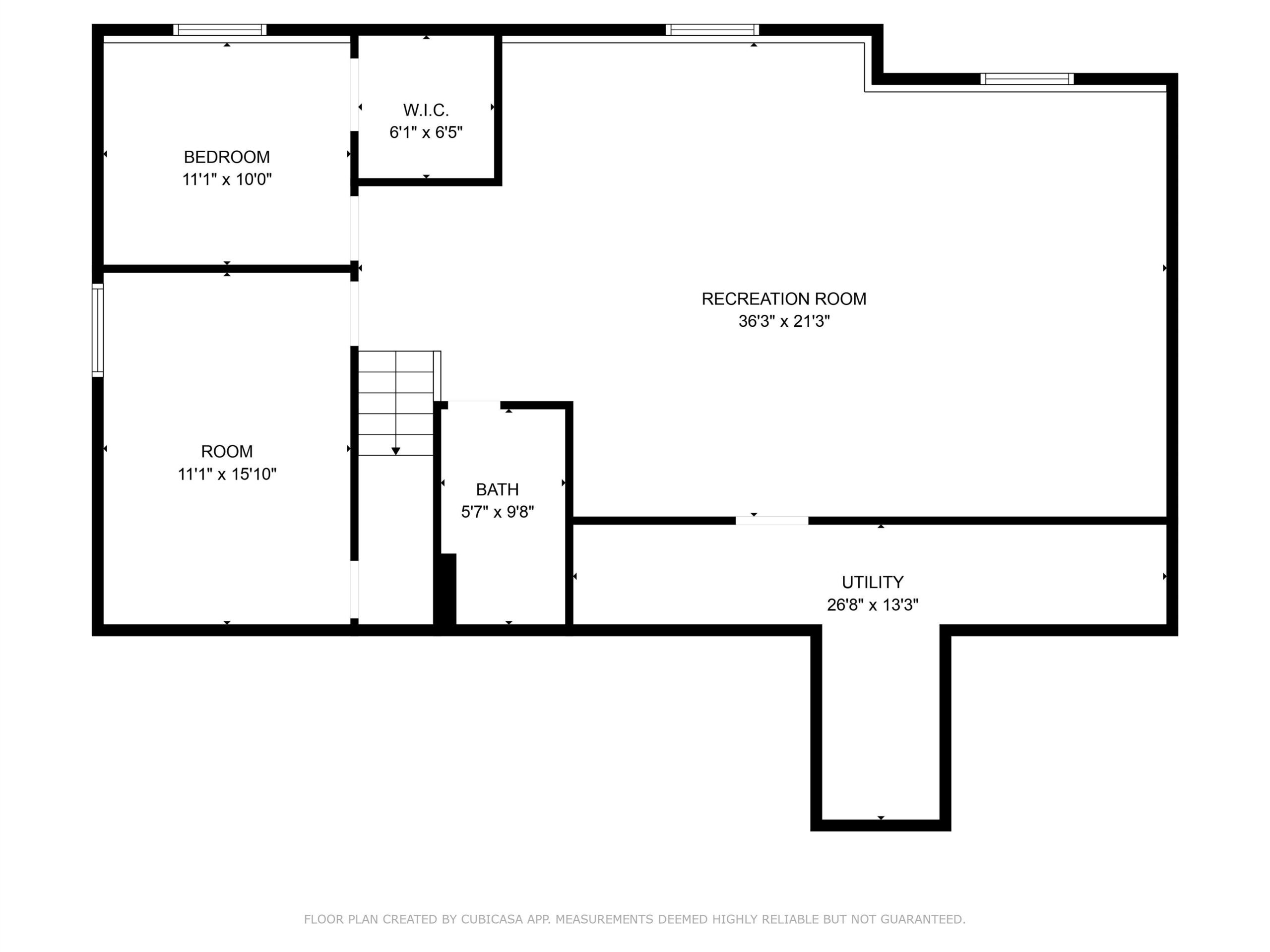
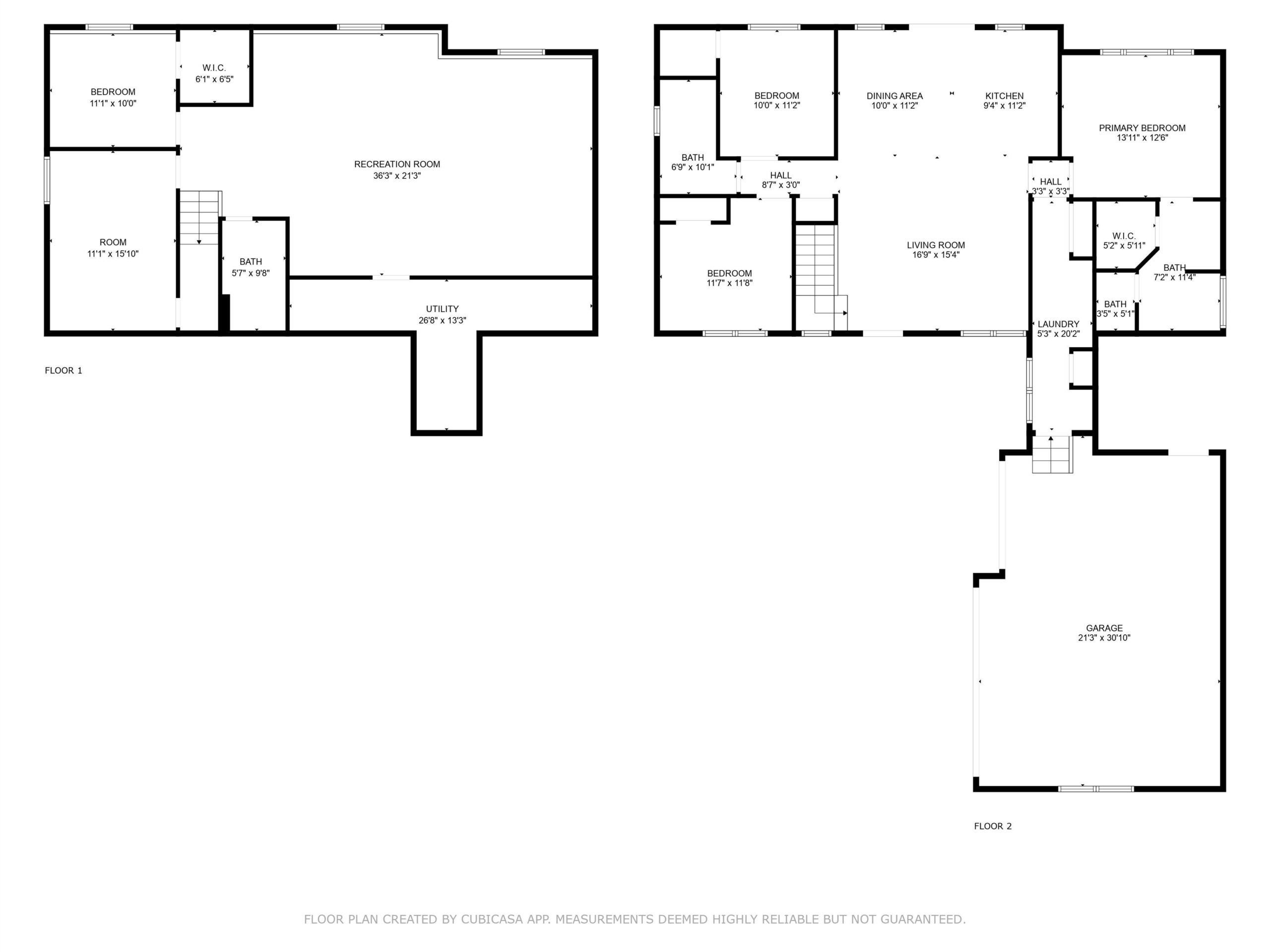
- Description: Welcome to 1238 Prairie Hill Cir! This home’s unique floorplan is perfect for families of any size and features 3 bedrooms on the open-concept main floor and 2 bedrooms in the massive finished basement. You and your family will love the “breezeway”, built-for-life owner’s entry through the courtyard-style 3-car garage. This breezeway houses a drop zone, storage or coat closet, laundry space with counter and pantry in a long hallway flooded with natural light that leads you to the split-bedroom master bedroom suite to the right and the rest of the home to the left. The master bedroom suite features a good-sized bedroom, a large master bathroom complete with a walk-in shower and a walk-in closet with off-season storage. If entering at the front of the home, you are met by the quaint porch and just through the front door, you’re greeted by the open-concept entry, living, kitchen and dining room and the stairs that lead to the basement. Through the hallway off the kitchen you’ll access bedrooms 2 and 3 and the large hall bathroom. The finished basement has a massive family room, a 3rd full bathroom, bedrooms 4 and 5 and a decent amount of dedicated storage space. The deck and patio are ready for occasions filled with fun and laughter as you entertain family and friends. This home is equipped with a Water Filtration System for soft water and Solar Panels which drastically lower your monthly energy bills and saving you money every month. Your family is sure to enjoy this home’s location and easy access to the highly anticipated development of the “Park Centre.” This sprawling 48-acre mixed-use development project will offer retail shops, restaurants, medical offices, and other services. This home is a must see in a growing community! Contact me today to schedule your private showing before it is gone. Show all description
Community
- School District: Wichita School District (USD 259)
- Elementary School: Chisholm Trail
- Middle School: Stucky
- High School: Heights
- Community: VILLAGE ESTATES
Rooms in Detail
- Rooms: Room type Dimensions Level Master Bedroom 13 x 14 Main Living Room 12 x 9 Main Kitchen 11 x 10 Main Family Room 19 x 26 Basement
- Living Room: 2385
- Master Bedroom: Master Bdrm on Main Level, Split Bedroom Plan, Shower/Master Bedroom, Two Sinks, Quartz Counters, Water Closet
- Appliances: Dishwasher, Disposal, Microwave, Refrigerator, Range
- Laundry: Main Floor
Listing Record
- MLS ID: SCK658036
- Status: Pending
Financial
- Tax Year: 2024
Additional Details
- Basement: Finished
- Roof: Composition
- Heating: Forced Air, Heat Pump, Zoned, Natural Gas
- Cooling: Central Air, Zoned, Electric
- Exterior Amenities: Guttering - ALL, Sprinkler System, Frame w/Less than 50% Mas
- Interior Amenities: Ceiling Fan(s), Walk-In Closet(s)
- Approximate Age: 5 or Less
Agent Contact
- List Office Name: Keller Williams Signature Partners, LLC
- Listing Agent: Jerry, Pennington
Location
- CountyOrParish: Sedgwick
- Directions: Take I-135 Northbound to exit 13 (53rd St), Turn Right onto 53rd St to Hydraulic, Turn Left on Hydraulic, Take Hydraulic to Village Estates Dr., Follow Village Estates Dr. to Ashford St. and turn left, follow Ashford and finally curve left onto E. Prairie Hill Cir.