Residential11653 W Scarlett Ct
At a Glance
- Builder: Liberty Communities
- Year built: 2025
- Bedrooms: 3
- Bathrooms: 2
- Half Baths: 0
- Garage Size: Attached, Opener, Zero Entry, 2
- Area, sq ft: 1,501 sq ft
- Date added: Added 2 weeks ago
- Levels: One
Description
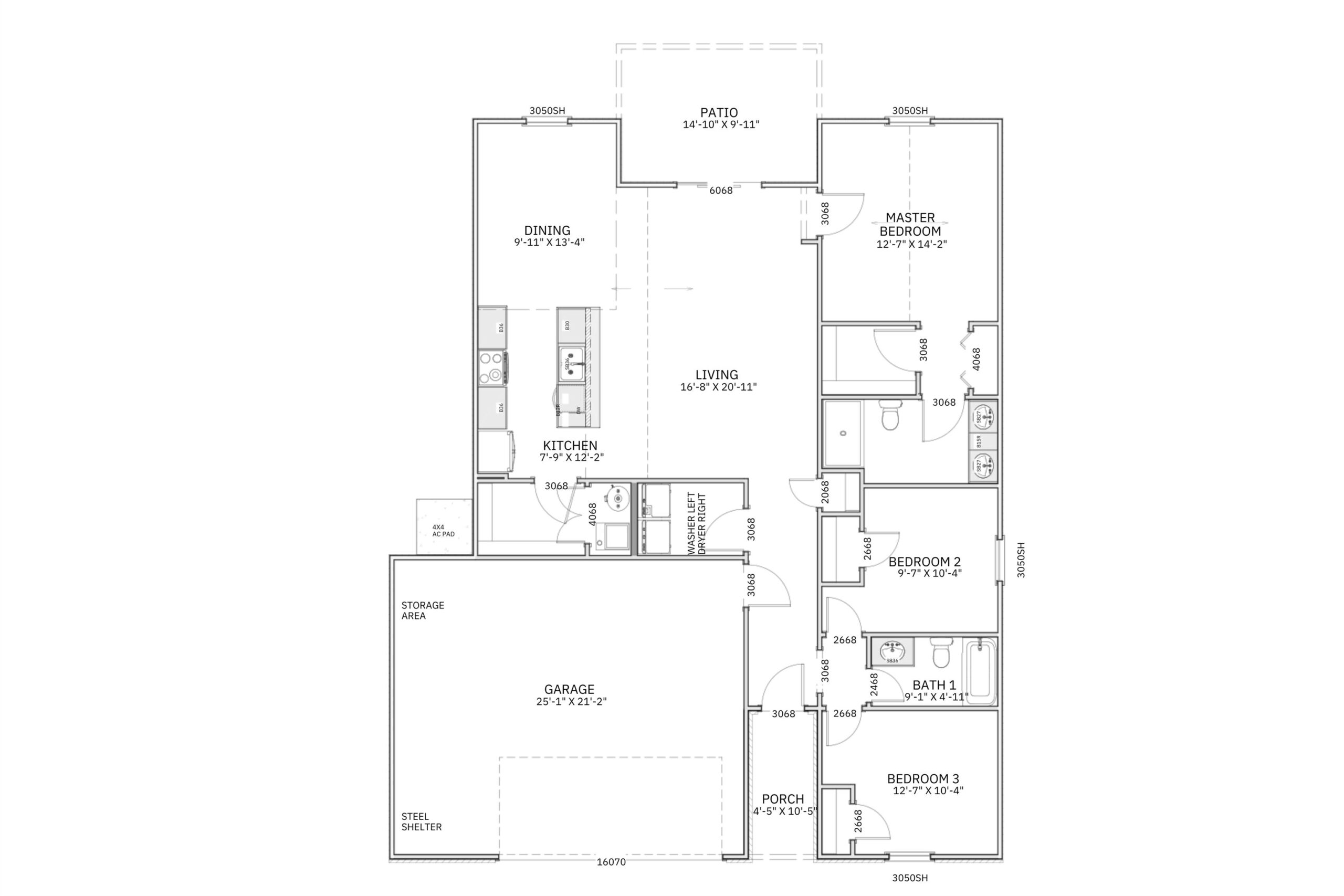
- Description: *** BUILDER IS OFFERING $3,000 TOWARD CLOSINGS COST UNTIL 3/31/26*** Welcome to the Independence by Liberty Communities, nestled on a in Maize’s newest development, Oakmont. This spacious 3 bedroom, 2 bathroom patio home offers an oversized 2 car garage with plenty of storage and a steel storm shelter. Inside you’ll find your gorgeous 8ft kitchen island and incredible walk-in pantry alongside your white soft-close cabinets and all new stainless steel appliances. You'll notice Liberty proudly leaves no stone unturned. All Oakmont New Builds include a refrigerator, stove, microwave, dishwasher, white wood blinds and LVP in main living areas. Exterior amenities include a generous 14 foot covered patio, sod, sprinkler, landscaping and irrigation well. All information is deemed reliable but not guaranteed. Show all description
Community
- School District: Maize School District (USD 266)
- Elementary School: Maize USD266
- Middle School: Maize
- High School: Maize
- Community: Oakmont
Rooms in Detail
- Rooms: Room type Dimensions Level Master Bedroom 13'3" x 14'10" Main Living Room 21'3"x13'3" Main Kitchen 8x12 Main Dining Room Main Bedroom Main Bedroom Main
- Living Room: 1501
- Master Bedroom: Master Bdrm on Main Level, Shower/Master Bedroom, Two Sinks, Quartz Counters
- Appliances: Dishwasher, Disposal, Microwave, Refrigerator, Range, Washer, Dryer
- Laundry: Main Floor, Separate Room, 220 equipment
Listing Record
- MLS ID: SCK662865
- Status: Active
Financial
- Tax Year: 2024
Additional Details
- Basement: None
- Roof: Composition
- Heating: Forced Air, Natural Gas
- Cooling: Central Air, Electric
- Exterior Amenities: Guttering - ALL, Irrigation Pump, Irrigation Well, Sprinkler System, Storm Shelter, Zero Step Entry, Frame w/Less than 50% Mas
- Interior Amenities: Window Coverings-All
- Approximate Age: New
Agent Contact
- List Office Name: RE/MAX Premier
- Listing Agent: Mykaela, SanMiguel
Location
- CountyOrParish: Sedgwick
- Directions: North on 119th from 37th, East on Scarlett, South on Scarlett Ct