Residential2848 N Holyoke St
At a Glance
- Year built: 1955
- Bedrooms: 4
- Bathrooms: 1
- Half Baths: 0
- Garage Size: None, 0
- Area, sq ft: 1,404 sq ft
- Floors: Laminate
- Date added: Added 5 months ago
- Levels: One
Description
- Description: Fully Remodeled 4-Bedroom Home – Everything is Brand New! This beautifully updated 4-bedroom, 1-bathroom home has been completely remodeled from top to bottom and is ready for its new owner. Located just minutes from Wichita State University and close to Brooks Middle School, it’s a perfect fit for a college student, first-time homebuyer, or a great rental investment. Nearly every inch of this home is new, including the roof, siding, windows, flooring, air conditioner, kitchen cabinets, countertops, and open shelving. The bathroom has been fully renovated with a tiled shower, brand-new bathtub, updated vanity, and fixtures. Natural light pours in through the new windows, highlighting the home’s clean, modern finishes. Due to the full remodel, the home is being sold as-is. This move-in-ready property offers incredible value and low-maintenance living. Don’t miss out! Show all description
Community
- School District: Wichita School District (USD 259)
- Elementary School: Buckner
- Middle School: Stucky
- High School: Heights
- Community: CHARRONS GARDEN ESTATES
Rooms in Detail
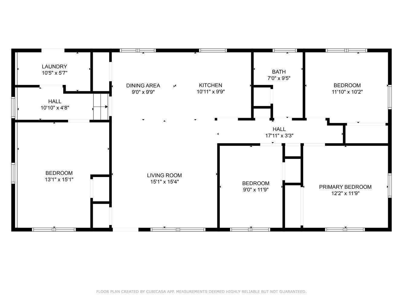
- Rooms: Room type Dimensions Level Master Bedroom 15.35 x 10.82 Main Living Room 15.09 x 12.10 Main Kitchen 20.05 x 9.5 Main Bedroom 12.26 x 9.08 Main Bedroom 12.29 x 17.13 Main Bedroom 11.8 x 9.76 Main
- Living Room: 1404
- Master Bedroom: Master Bdrm on Main Level, Split Bedroom Plan
- Appliances: Dishwasher, Disposal, Microwave, Range
- Laundry: Main Floor, Separate Room, 220 equipment
Listing Record
- MLS ID: SCK658608
- Status: Sold-Co-Op w/mbr
Financial
- Tax Year: 2024
Additional Details
- Basement: None
- Roof: Composition
- Heating: Forced Air, Natural Gas
- Cooling: Central Air, Electric
- Exterior Amenities: Guttering - ALL, Frame w/Less than 50% Mas
- Interior Amenities: Ceiling Fan(s)
- Approximate Age: 51 - 80 Years
Agent Contact
- List Office Name: Keller Williams Signature Partners, LLC
- Listing Agent: Kirk, Short
- Agent Phone: (316) 371-4668
Location
- CountyOrParish: Sedgwick
- Directions: HILLSIDE & 27TH ST E. ON 27TH TO HOLYOKE. NORTH ON HOLYOKE TO HOME