Residential2400 E Spring Hill Dr
At a Glance
- Year built: 2006
- Bedrooms: 3
- Bathrooms: 2
- Half Baths: 0
- Garage Size: Attached, Opener, 2
- Area, sq ft: 1,730 sq ft
- Floors: Smoke Detector(s)
- Date added: Added 2 weeks ago
- Levels: One
Description
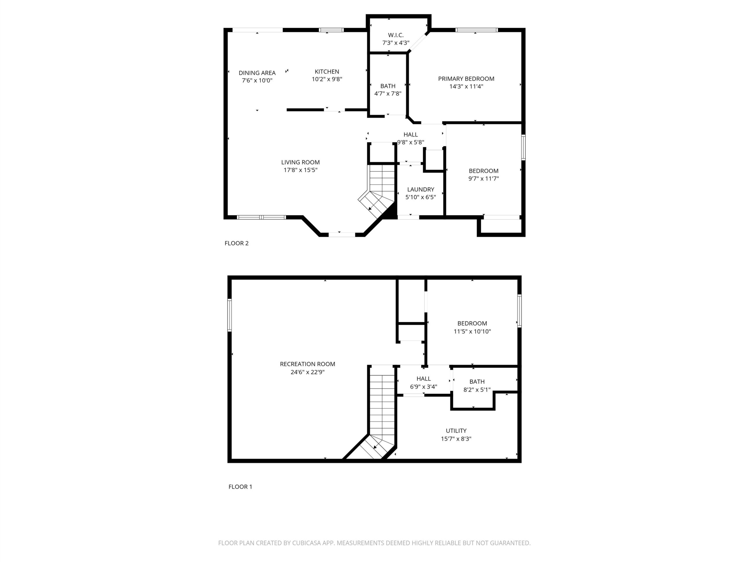
- Description: Welcome to this wonderfully maintained 3bed/2bath/2car ranch that blends modern updates with everyday comfort. The inviting exterior sets the tone with great curb appeal and a lush, well-kept yard. Inside, the main floor feels bright and open, featuring new white trim and luxury vinyl plank flooring that carries through the living room, dining area, kitchen, and bedrooms. Morning light pours into the living room, creating a warm, cheerful start to the day. The kitchen offers fresh updates with new lighting, a new garbage disposal, and all appliances remaining for an easy move. Main floor laundry is conveniently located, and both the washer and dryer stay with the home. The primary bedroom features a walk-in closet and new ceiling fan, while the second bedroom showcases updated paint and clean, modern finishes. The hall bath includes new tile flooring, updated lighting, and stylish hardware. The lower level provides even more living space with a daylight family room, a third bedroom with its own walk-in closet, and a full bath echoing the updated finishes of the bath upstairs. Mechanical improvements include a radon mitigation system, battery-powered sump pump, new garage keypad, and a Wyze security system that remains with the property. Out back, the pergola-covered patio offers a relaxing spot within the privacy-fenced yard, complete with a sprinkler system and irrigation well. The front porch window captures stunning sunset views, making it a favorite place to unwind. The exterior has also been enhanced with some new siding, fresh paint, and a brand-new roof and gutters. Thoughtfully updated from top to bottom and move-in ready, this home is a standout you won’t want to miss. *See the promo video for more views of this property!* Show all description
Community
- School District: Goddard School District (USD 265)
- Elementary School: Explorer
- Middle School: Eisenhower
- High School: Dwight D. Eisenhower
- Community: SPRING HILL
Rooms in Detail
- Rooms: Room type Dimensions Level Master Bedroom 14x12 Main Living Room 18x15 Main Kitchen 12x10 Main Bedroom 12x10 Main Family Room 24.6x22.9 Basement Bedroom 14x13 Basement
- Living Room: 1730
- Master Bedroom: Master Bdrm on Main Level
- Appliances: Dishwasher, Disposal, Microwave, Refrigerator, Range, Washer, Dryer, Smoke Detector
- Laundry: Main Floor, Separate Room, 220 equipment
Listing Record
- MLS ID: SCK665430
- Status: Active
Financial
- Tax Year: 2024
Additional Details
- Basement: Finished
- Roof: Composition
- Heating: Forced Air, Natural Gas
- Cooling: Central Air, Electric
- Exterior Amenities: Guttering - ALL, Irrigation Well, Sprinkler System, Frame w/Less than 50% Mas, Brick
- Interior Amenities: Ceiling Fan(s), Walk-In Closet(s), Vaulted Ceiling(s), Smoke Detector(s)
- Approximate Age: 11 - 20 Years
Agent Contact
- List Office Name: RE/MAX Premier
- Listing Agent: Christy, Friesen
- Agent Phone: (316) 854-0043
Location
- CountyOrParish: Sedgwick
- Directions: From Maple and 183rd, South to Spring Hill Dr, East to home