Residential Lease201 S Saint Francis
At a Glance
- Year built: 1925
- Bedrooms: 1
- Bathrooms: 2
- Half Baths: 0
- Garage Size: Attached
- Area, sq ft: 1,146 sq ft
- Floors: Hardwood
- Date added: Added 2 months ago
- Levels: One
Description
- Description: Experience vibrant downtown living at The Lofts at St. Francis! This spacious 1-bedroom, 2-bath condo offers over 1, 100 sq. ft. of stylish loft living with incredible views overlooking INTRUST Bank Arena and Naftzger Park. The open layout features a modern kitchen, in-unit washer and dryer, and a private balcony that puts you right in the heart of the action. Step outside and enjoy all that downtown Wichita has to offer — from concerts and games across the street to year-round events, food trucks, and entertainment at Naftzger Park just steps away. Enjoy the convenience of a dedicated garage parking space and take advantage of the building’s premier amenities, including a rooftop outdoor kitchen and lounge area with sweeping views of the Wichita skyline. Whether it’s game night, concert night, or a night out downtown, you’ll love the energy of this location paired with the comfort of coming home to your own retreat. Show all description
Community
- School District: Wichita School District (USD 259)
- Elementary School: Lincoln
- Middle School: Hamilton
- High School: West
- Community: LOFTS AT ST FRANCIS
Rooms in Detail
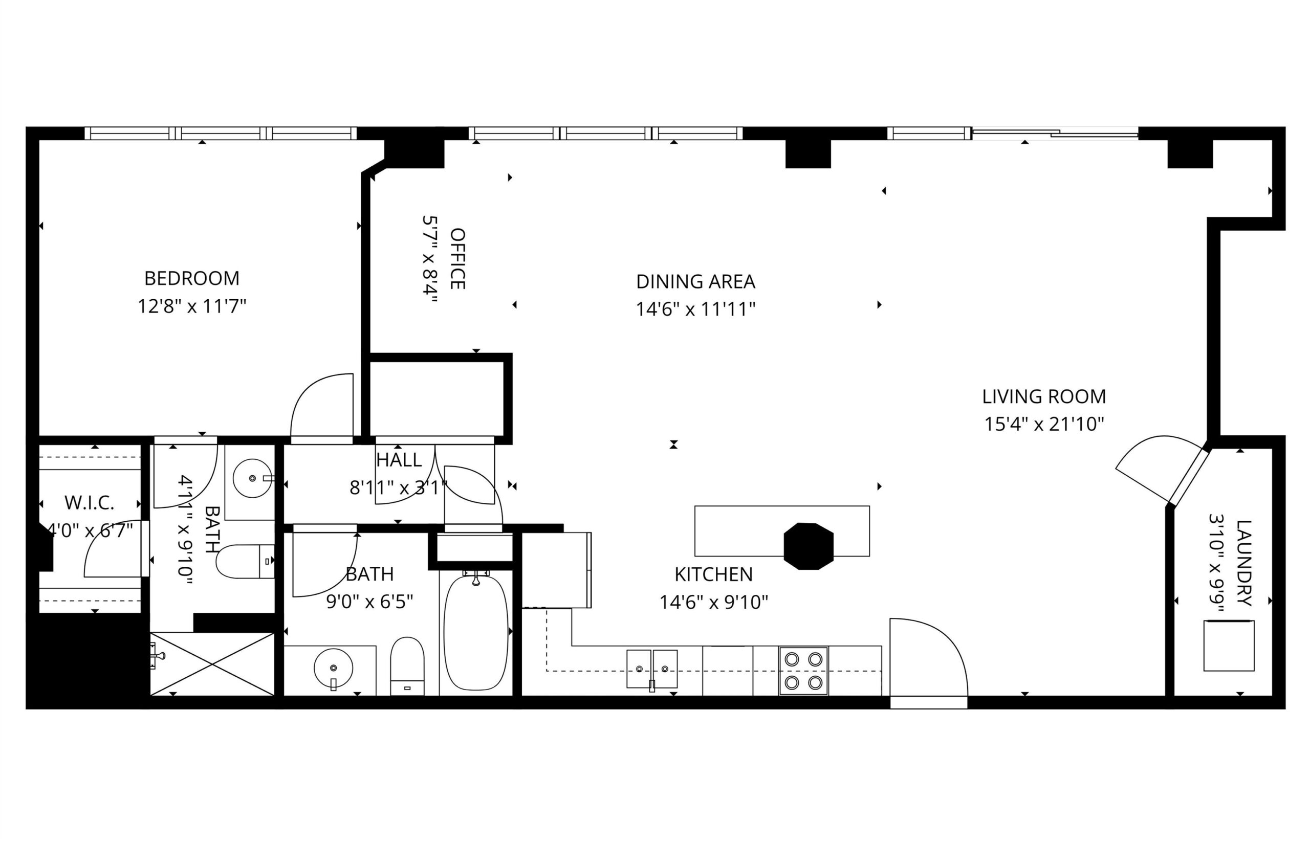
- Rooms: Room type Dimensions Level Master Bedroom 12’8”x11’7” Main Living Room 15’4”x21’10” Main Kitchen 14’6”x9’10” Main
- Living Room: 1146
- Master Bedroom: Master Bdrm on Main Level, Master Bedroom Bath
- Appliances: Dishwasher, Disposal, Refrigerator, Range, Washer, Dryer
- Laundry: Main Floor, Separate Room, 220 equipment
Listing Record
- MLS ID: SCK662968
- Status: Active
Financial
- Tax Year: 2024
Additional Details
- Basement: None
- Roof: Other
- Heating: Forced Air, Natural Gas
- Cooling: Central Air
- Exterior Amenities: Balcony, Other
- Interior Amenities: Ceiling Fan(s), Walk-In Closet(s)
- Approximate Age: 81+ Years
Agent Contact
- List Office Name: Reece Nichols South Central Kansas
- Listing Agent: Megan, Metcalf
Location
- CountyOrParish: Sedgwick
- Directions: From Douglas and Washington, go west on Douglas to Saint Francis. Turn left on Saint Francis. Two block south on Saint Francis, lofts are on the right.